重力式挡土墙cad

重力式挡土墙
图片尺寸866x625
关于挡土墙,这篇讲的比教材详细得多!
图片尺寸530x324
重力式挡墙是为防止土体坍滑而修筑的,主要承受侧向土压力的墙式
图片尺寸464x396
重力式挡墙是为防止土体坍滑而修筑的,主要承受侧向土压力的墙式
图片尺寸463x358
衡重式挡土墙是指利用衡重台上部填土的重力而墙体图片尺寸560x370

重力式挡土墙可根据其墙背的坡度分为以下几种类型
图片尺寸499x352
重力式挡土墙
图片尺寸290x205
重力式挡土墙
图片尺寸300x135
挡土墙分类大全及重力式挡土墙设计,示意图及实例照片!
图片尺寸960x720
挡土墙分类大全及重力式挡土墙设计示意图及实例照片
图片尺寸960x720
data-lemmaid="9717194">挡土墙是指利用衡重台上部填土的重力而
图片尺寸457x329
挡土墙分类大全及重力式挡土墙设计,示意图及实例照片!
图片尺寸960x720
挡土墙分类大全及重力式挡土墙设计,示意图及实例照片!
图片尺寸960x720
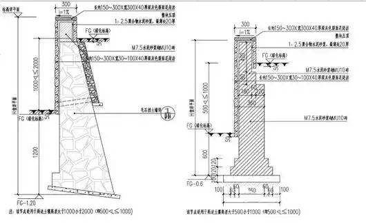
重力构造
图片尺寸610x432
挡土墙分类大全及重力式挡土墙设计,示意图及实例照片!
图片尺寸960x720
挡土墙分类大全及重力式挡土墙设计,示意图及实例照片!
图片尺寸960x720
关于挡土墙,这篇讲的比教材详细得多!
图片尺寸520x429
挡土墙分类大全及重力式挡土墙设计,示意图及实例照片!
图片尺寸960x720
关于挡土墙你懂多少
图片尺寸640x650
是另一种混凝土或砌石重力式挡土墙
图片尺寸693x675