金属窗套节点

铝合金门窗塞缝规范
图片尺寸720x804
175个金属门窗节点详图
图片尺寸824x612
175个金属门窗节点详图
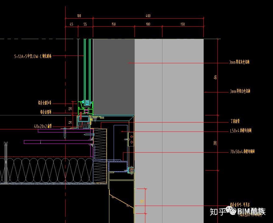
图片尺寸903x654
铝合金窗节点图图片
图片尺寸1024x582
cn213063386u_一种新型断桥铝合金防火窗
图片尺寸1500x841
非幕墙体系外墙窗洞开口处金属窗套构件安装结构的制作方法
图片尺寸781x1000
族迹一种铝板幕墙外窗套族
图片尺寸879x719
图5-9带窗套窗口节点示意图 (4),凸窗做法
图片尺寸640x501
一种外置窗套的铝合金窗
图片尺寸749x1000
金刚网防盗纱窗的铝合金一体窗制造技术
图片尺寸499x1000
铝合金固定窗节点制造技术
图片尺寸472x1000
16个窗节点大样详图
图片尺寸3000x2250
某幕墙铝合金门窗节点构造详图
图片尺寸1440x1020
某铝合金窗节点构造详图
图片尺寸610x471
某幕墙铝合金门窗节点构造详图
图片尺寸610x861
某铝窗详图-室内节点详图-筑龙室内设计论坛
图片尺寸800x600
一种具排水功能的隐钉式可伸缩窗套
图片尺寸1590x1207
分享窗套大样详图资料下载
图片尺寸497x560
窗套的制作方法
图片尺寸979x1000
各种系列断桥隔热铝合金门窗节点详图
图片尺寸729x523