鑫界王府小学

副区长赵月芬出席草场街教育集团鑫界王府小学启用暨开学典礼
图片尺寸800x533
草场街教育集团鑫界王府小学召开启用暨开学典礼,一年级全体师生齐聚
图片尺寸750x500
鑫界王府周边槐安西路小学-石家庄搜房网
图片尺寸867x578
石家庄市草场街小学鑫界王府校区开展消防演练筑牢安全防线
图片尺寸680x383
副区长赵月芬出席草场街教育集团鑫界王府小学启用暨开学典礼
图片尺寸800x533
石家庄市草场街小学鑫界王府校区开展消防演练筑牢安全防线
图片尺寸680x385
石家庄市草场街小学鑫界王府校区开展消防演练筑牢安全防线
图片尺寸663x374
石家庄知名小学要建分校啦投资12亿元明年7月底前验收
图片尺寸560x294
鑫界王府周边北杜小学
图片尺寸900x600
新案量尺石家庄鑫界王府200跃层
图片尺寸1080x810
鑫界王府240平米欧式新古典风格装修效果图
图片尺寸990x578
时光街新石北路鑫界王府精装一室一厅齐全
图片尺寸1080x1440
石家庄2021年小学招生简章汇总速看
图片尺寸1080x1440
我爱你中国|草场街教育集团鑫界王府小学栀子花一班开展"我和国旗合个
图片尺寸2668x2000
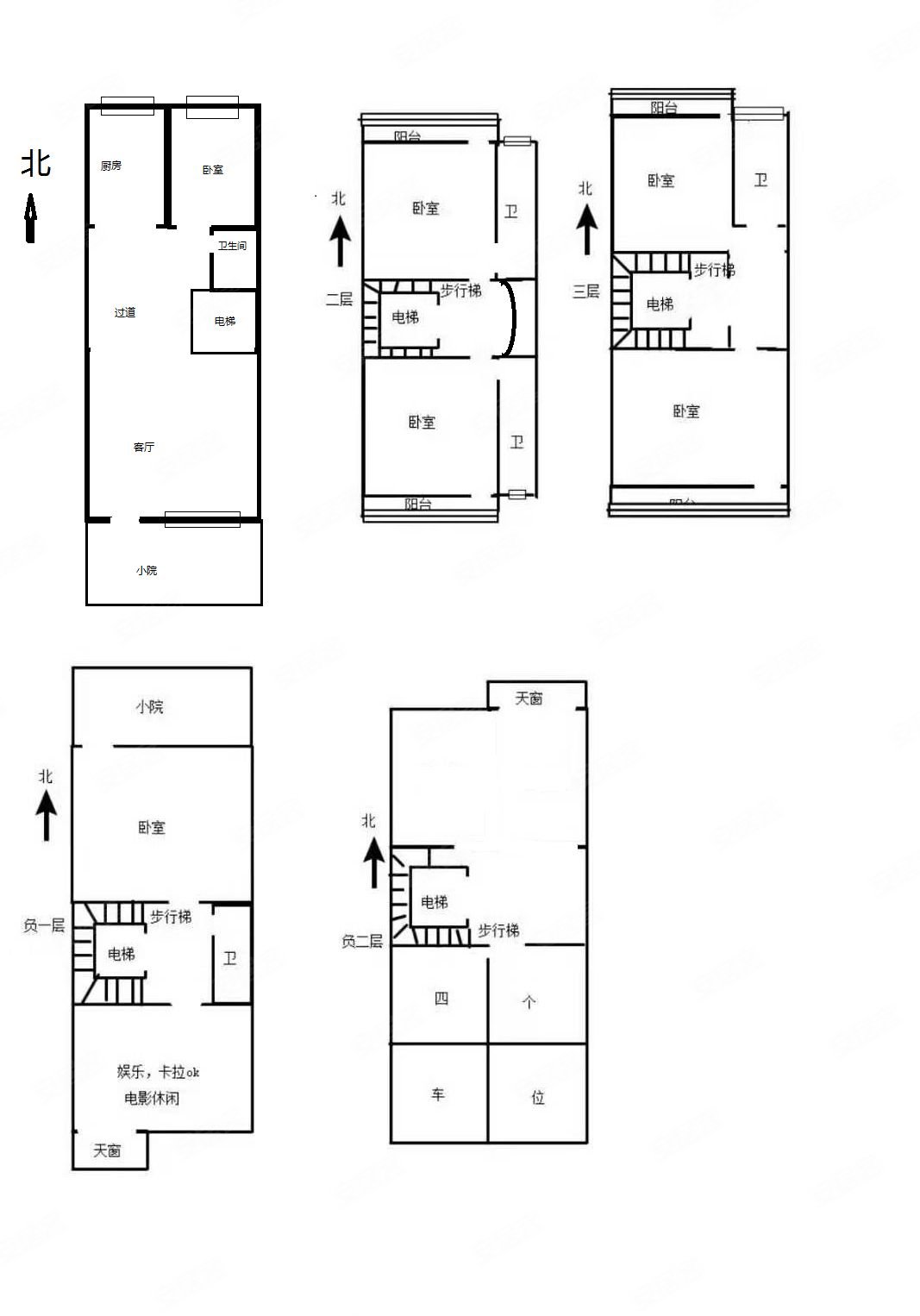
鑫界王府(别墅)5室3厅5卫396㎡南北780万
图片尺寸1067x1526
鑫界王府花园洋房遇见生活的诗意
图片尺寸1267x950
鑫界王府花园洋房,理想置业的选择
图片尺寸1267x884
本小区小学是鑫界王府的草场街分校博瑞小学,硬件和师资都不错
图片尺寸1080x802
查看全部图片(11张)小区:鑫界王府小区地址:时光街房租走势68在租房源
图片尺寸696x522
鑫界王府(别墅)3室2厅3卫252㎡南北520万
图片尺寸1333x1000