钢板仓图纸

600立方钢板仓设计图-详图图库-图纸交易网
图片尺寸650x450
3000t玉米钢板仓
图片尺寸701x496
Φ12m钢板仓基础图
图片尺寸726x414
cad图纸 >3000t玉米钢板仓立面图 cad图纸内容预览结束,如需源
图片尺寸800x500
钢板仓1cad图纸
图片尺寸800x600
一种平板基础式钢板仓的制作方法
图片尺寸950x1000
3000t玉米钢板仓平面图下载(147.29 kb,rar格式) 机械cad图纸
图片尺寸697x482
钢板仓方案cad图纸dwg图纸
图片尺寸739x570
3000t玉米钢板仓立面图
图片尺寸706x476
32x32米钢板仓- 建筑图纸 - 沐风网
图片尺寸820x304
玉米钢板仓平面图cad机械图纸
图片尺寸1024x723
一种带有防结拱装置的钢板仓的制作方法
图片尺寸457x593
100吨料仓结构设计图钢结构共3张图
图片尺寸610x861
螺旋式钢板仓装配图 - autocad矿山机械图纸下载 - 沐风图纸
图片尺寸820x656
玉米钢板仓下载(675.83 kb,rar格式)__机械cad图纸 - 工百科
图片尺寸720x484
5米钢板筒仓结构设计图 - 食品机械图纸 - 沐风网
图片尺寸820x256
一种防破碎钢板仓的制作方法
图片尺寸498x583
钢板仓图纸自己的原创图纸分享给大家 还有设计的规范 没有验收
图片尺寸492x355
直径11米高14米高筒式钢板仓结构图纸
图片尺寸696x504
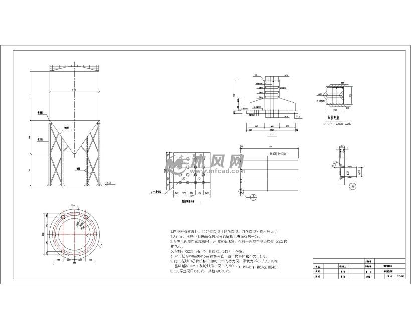
安阳某Φ12m钢板仓基础结构设计图纸
图片尺寸610x432