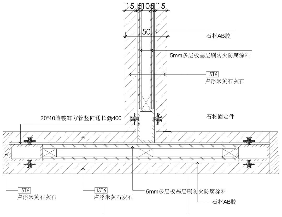
钢结构隔墙节点

卫生间钢架隔墙节点大样图绘制方法分享
图片尺寸1080x1440
轻钢龙骨隔墙
图片尺寸724x497
卫生间钢架隔墙
图片尺寸707x582
一日一节点87钢架隔墙节点
图片尺寸960x1280
轻钢龙骨石膏板隔墙工艺流程:墙位放线→墙基施工→安装沿地,沿顶龙骨
图片尺寸1080x675
室内轻钢龙骨,钢架,砌块等隔墙节点详图
图片尺寸1648x1165
室内轻钢龙骨,钢架,砌块等隔墙节点详图
图片尺寸1648x1165
各类隔墙节点详图大全
图片尺寸881x612
cad防火玻璃墙钢架隔墙剖面图节点大样图
图片尺寸1024x691
这才是钢架隔墙的正确做法dop节点大放送
图片尺寸1080x1331
钢架墙在有防水要求的区域,如:厨房,卫生间等,隔墙下部会设置混凝土
图片尺寸602x638
轻钢龙骨隔墙安装方法有哪些
图片尺寸344x268
轻钢龙骨隔墙节点
图片尺寸686x425
室内轻钢龙骨,钢架,砌块等隔墙节点详图
图片尺寸1648x1165
室内轻钢龙骨,钢架,砌块等隔墙节点详图
图片尺寸1648x1165
cad隔墙节点大样轻钢龙骨钢架石膏板隔断工艺设计素材源文件
图片尺寸800x800
彩钢板隔墙连接节点图-钢结构节点详图-筑龙结构设计论坛
图片尺寸705x510
各类隔墙做法节点大样合集室内装饰装修门窗洞口轻钢龙骨钢架玻璃防火
图片尺寸1000x692
洁净空调彩钢板隔墙节点设计图
图片尺寸610x858
室内50mm厚超薄隔墙的做法
图片尺寸1080x830