钢结构雨棚大样

某钢结构雨棚节点详图
图片尺寸399x295
供应钢结构雨棚 钢雨棚 玻璃雨棚 阳光棚 花园露台棚 停车棚厂
图片尺寸886x629
某大厦斜拉钢结构雨棚施工图cad
图片尺寸651x483
某钢结构雨棚节点详图
图片尺寸560x374
钢结构玻璃雨蓬大样
图片尺寸1263x1787
公建钢结构室外雨棚施工图
图片尺寸1126x804
浙江钢结构设计-住宅雨棚钢结构设计
图片尺寸791x562
请问这种钢雨棚应该套什么定额?
图片尺寸1108x574
轻钢雨棚结构大样图详细资料
图片尺寸789x610
不锈钢拉杆钢化玻璃雨棚做法详图
图片尺寸1440x1020![[节点详图]某钢结构玻璃雨篷结构节点构造详图](https://i.ecywang.com/upload/1/img0.baidu.com/it/u=3145383442,3233341103&fm=253&fmt=auto&app=138&f=JPEG?w=710&h=500)
[节点详图]某钢结构玻璃雨篷结构节点构造详图
图片尺寸852x600
某大厦斜拉钢结构雨棚施工图cad
图片尺寸760x529
浙江雨棚钢结构设计
图片尺寸793x562
辽宁省沈阳市某酒店雨棚钢结构设计
图片尺寸1101x778
某厂房简易钢结构雨棚大样
图片尺寸696x552
钢结构雨棚计算分析
图片尺寸920x1302
辽宁省沈阳市某酒店雨棚钢结构设计
图片尺寸1102x774
某大厦斜拉钢结构雨棚施工图cad
图片尺寸572x476
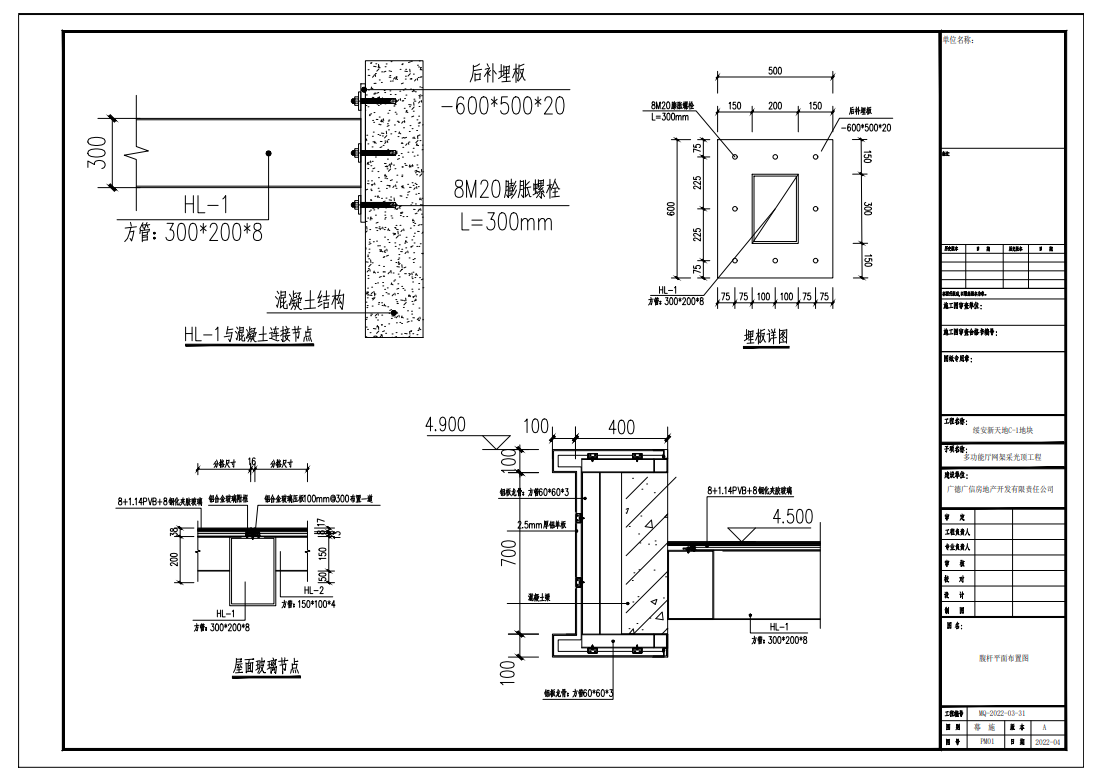
某钢结构雨棚节点构造详图
图片尺寸777x542
雨棚停车棚cad设计图地下车库自行车棚子钢结构铝板玻璃雨棚雨篷
图片尺寸790x1108