铝合金时效炉结构图

百慕炉业省气节能王——双蓄热节能燃气熔铝炉
图片尺寸1118x638
一种可变炉膛尺寸的铝型材时效炉的制作方法
图片尺寸648x1000
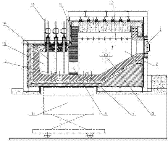
一种新型热处理时效炉的制作方法
图片尺寸290x1000
台车时效炉结构原理
图片尺寸650x500
提高铝及铝合金熔体温度均匀性的等温熔炼炉炉膛结构
图片尺寸1936x1336
钢壳中频电炉炉体结构图如下:上图是用于铸造的铝壳中频电炉炉体结构
图片尺寸786x649
一种航空铝材时效炉炉温精准控制装置
图片尺寸576x349
cn102954682a_铝及铝合金高效等温熔炼炉失效
图片尺寸568x480
一种连续式铝合金集中熔化炉的制作方法
图片尺寸554x751
主要用于各种铝合金的熔炼,特别是铝型材,铝制品等回炉料较多且单炉
图片尺寸500x607
与钢制平台下方的时效炉呈一字型上下结构;所述固熔炉的两端分别设有
图片尺寸706x1000
cn305218096s_铝棒加热炉(11寸三排)有效
图片尺寸600x568
铝熔化炉保温炉节能探讨
图片尺寸319x463
cn101900483a_一种搭载蓄热式燃烧器的铝合金熔解炉失效
图片尺寸1703x1446
燃气式铝合金快速淬火热处理炉的制作方法
图片尺寸724x676
时效炉
图片尺寸3001x1473
鸿达教你根据铝熔炼炉损坏机理选择合适的耐火材料_合金化
图片尺寸1080x830
预抽真空热处理炉
图片尺寸545x464
zlq-350真空载气铝钎焊炉 model (1)
图片尺寸1204x1702
铝合金箱式时效炉铝加硬炉67系铝制品热处理炉去应力加热炉
图片尺寸800x511