银湖半山户型图

银湖半山
图片尺寸599x432
【多图】银湖半山,红岗花园租房,罗湖经典两房 标准两房两厅 双阳台
图片尺寸600x450
9栋c户型 4房2厅3卫 174平方米
图片尺寸766x1024
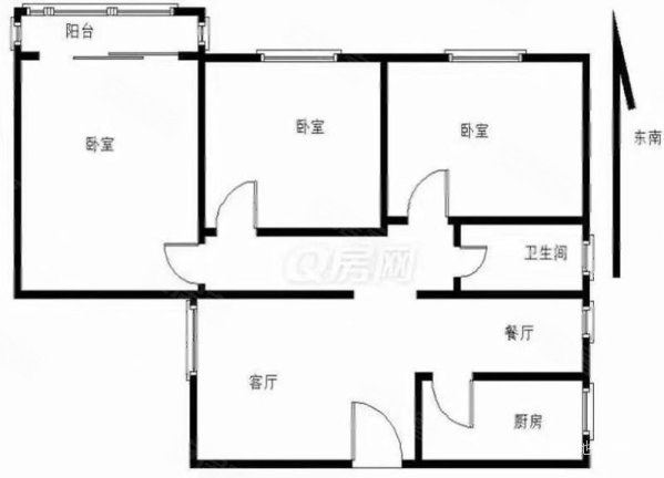
送20平大3房2厅 80万,70年红本,送车位一个,银湖半山二手房,230万,3室
图片尺寸913x827
【多图】银湖半山,红岗花园租房,花园小区 独立一房 户型 方正 禧缺
图片尺寸480x450
深圳罗湖红岗花园银湖半山银湖半山(家具齐全,高层俯瞰山林)租金实惠
图片尺寸600x450
【多图】银湖半山,红岗花园租房,花园小区 小区鸟语花香 做拥天然氧吧
图片尺寸600x450
华润银湖蓝山户型图 - 深圳房掌柜
图片尺寸1350x1104
半山半岛5期f户型 3房2厅1厨2卫 160㎡
图片尺寸1000x700
华润银湖蓝山户型图 - 深圳房掌柜
图片尺寸1320x1012
【多图】银湖半山,红岗花园租房,银湖半山 醉美大单间 别墅的体验亲民
图片尺寸600x450
华润银湖蓝山户型图 - 深圳房掌柜
图片尺寸1510x1250
华润银湖蓝山
图片尺寸1147x1200
实探| 4年了,银湖终于上新,缙山府户型曝光,106㎡横厅户型太太太绝了
图片尺寸828x1308
半山豪宅,难得的小户型,背靠银湖山,阳台看整个福田夜景
图片尺寸800x600
罗湖租房银湖半山六号大院
图片尺寸1080x809
户型 户型图 平面图 1080_1466 竖版 竖屏
图片尺寸1080x1466
深圳罗湖红岗花园银湖半山罗湖花园小区 正规一房一厅出租房源真实
图片尺寸582x450
半山半岛5期c户型 2房2厅1厨2卫 120㎡
图片尺寸1000x700
深圳罗湖红岗花园银湖半山新出房源 花园小区 银湖半山 实图实价 停车
图片尺寸589x450