长江华府户型图

武汉能建长江华府售楼处电话_长江华府售楼处24小时热线电话-营销中心
图片尺寸620x873
长江华府苏宁睿城南北通透139平东边户大三房看中好谈
图片尺寸2048x1696
case floor plan三房 建面约98㎡能建·长江华府户型图展示part 1
图片尺寸575x630
武汉能建长江华府楼盘24小时咨询热线_地址&一房一价表公示中_能建
图片尺寸690x777
case floor plan三房 建面约98㎡能建·长江华府户型图展示part 1
图片尺寸599x630![能建·长江华府[普通住宅,洋房]](https://i.ecywang.com/upload/1/img2.baidu.com/it/u=396539095,3034645431&fm=253&fmt=auto&app=120&f=JPEG?w=888&h=500)
能建·长江华府[普通住宅,洋房]
图片尺寸1400x788
武汉能建长江华府项目-售楼处电话-物业口碑-户型-小区环境-长江华府
图片尺寸797x904
长江华府汇文精装大平层医疗配套成熟近地铁新空未住
图片尺寸1000x854
长江华府_4室2厅4卫_253平米_户型图长江华府_3室2厅2卫_98平米_户型
图片尺寸2274x1280
【能建·长江华府】建面98㎡-253㎡户型研讨装修方案
图片尺寸618x643
长江华府142㎡极简轻奢风
图片尺寸1200x844
长江华府(长江华府售楼处电话)2024长江华府最新房价-小区环境-户型
图片尺寸825x902
【能建·长江华府】建面98㎡-253㎡户型研讨装修方案
图片尺寸628x630
长江华府设计分享
图片尺寸1080x982
店长此房我实地看过八年房产人长江华府小区专家
图片尺寸950x742
韵--长江华府142m05现代轻奢风格
图片尺寸2800x2110
武汉能建长江华府(长江华府)首页网站-2024最新房价 户型 小区环境
图片尺寸850x673
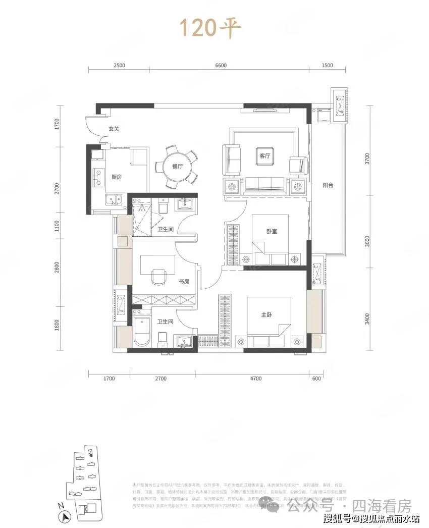
能建长江华府售楼处电话→售楼中心电话号码→楼盘百科详情→24小时
图片尺寸850x1046
柒筑出品-南京·长江华府142全案落地样板间.
图片尺寸1080x747
长江华府收官后就交付!节前这些热盘还有机会
图片尺寸1080x1564