门头骨架图

永德徳党杰豪通讯门头制作(董建平)骨架焊接
图片尺寸810x1080
做门头骨架
图片尺寸750x563
门头招牌制作大概多少钱
图片尺寸650x343
西岸好声音门头钢构架 - 上海同程建设科技工程有限公司
图片尺寸3264x2448
中国移动临沧分公司门头标识制作项目工程,永德永康鑫宇,永康通讯
图片尺寸810x1080
【全城聚焦】汤阴大北街工程进度播报,看看何时能完工?
图片尺寸600x585
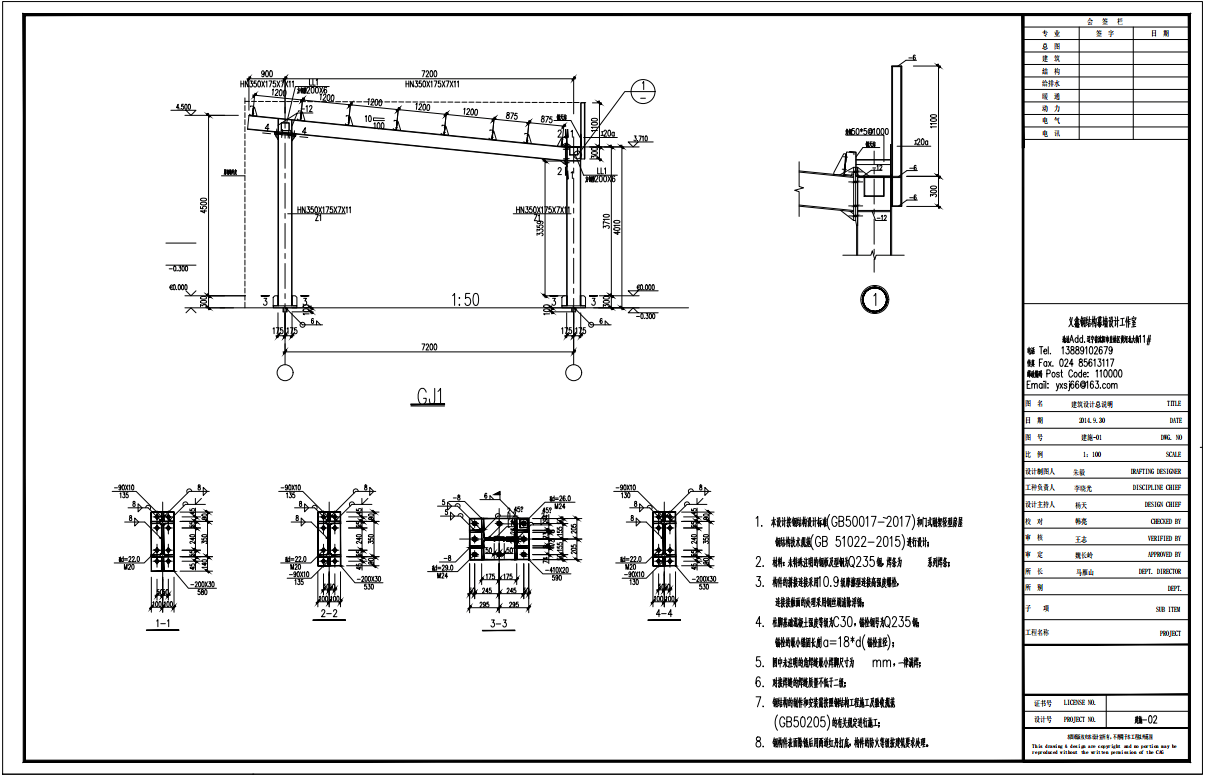
辽宁省鞍山某车辆管理所增加门头钢结构设计_项目名称_墙体_屋面
图片尺寸1206x778
门头标识制作项目工程,永德永康鑫宇,永康通讯(董建平)鑫宇骨架安装
图片尺寸810x1080
干货丨铝塑板门头制作标准流程
图片尺寸800x380
商业街钢结构门头设计图
图片尺寸302x235
新疆乌鲁木齐某中学门头钢结构设计
图片尺寸1157x821
江北林达3611进厂时间,7月23日,交工时间,8月3日
图片尺寸1440x1080
原来杂乱的广告位如今干净有序,施工人员也在紧张地安装门头钢骨架
图片尺寸600x450
钢结构设计增加门头钢结构设计
图片尺寸1209x775
凤城九路粮油供应站门头骨架制作安装5人.
图片尺寸2000x2666
花卉苗木基地门头钢结构搭建完成
图片尺寸1600x1200
酒店门头广告牌钢架结构图图片
图片尺寸650x434
商业门头订做安装
图片尺寸1920x1149![[重庆]某专卖店门头详图](https://i.ecywang.com/upload/1/img2.baidu.com/it/u=3059340558,3858997346&fm=253&fmt=auto&app=138&f=JPEG?w=560&h=420)
[重庆]某专卖店门头详图
图片尺寸560x420
8.01小宝鞋城双城店 写美篇外立面门头骨架焊接完成
图片尺寸2000x2667