门禁系统cad图例

史上最全弱电系统标准cad图例,拿走不谢!
图片尺寸640x414
门禁接线用什么线缆?7类门禁接线大总结
图片尺寸1011x865
门禁系统如何与消防,视频监控,楼宇系统联动,附门禁最全大样图
图片尺寸880x462
门禁系统的大样图,系统图及消防联动示意图cad素材
图片尺寸1080x402
梯控应支持多种识别方式:手机app,小程序,二维码,ic卡,人脸识别等识别
图片尺寸904x661
门禁系统中的符号和图例代表的是什么?
图片尺寸635x569
门禁系统如何与消防,视频监控,楼宇系统联动,附门禁最全大样图
图片尺寸870x466
弱电常用八大系统图例,看图纸再也不难了
图片尺寸640x637
门禁系统与消防,视频,智能楼宇系统联动,附门禁系统大样图!
图片尺寸954x455
常见的弱电符号有哪些?
图片尺寸640x375
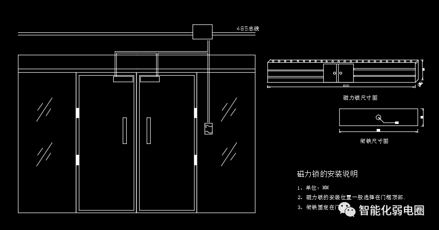
假期,赠送弱电工程门禁安装大样图,赶快来领取吧!
图片尺寸1080x487
酒店,办公楼等类型项目cad图例
图片尺寸623x614
门禁系统中的符号和图例代表的是什么?
图片尺寸697x252
了解楼宇对讲门禁安装图样:看图学知识!
图片尺寸591x499
三级甲等医院智能化系统图,cad格式
图片尺寸1052x512
门禁安装大样图,管线图,系统图,电锁安装图
图片尺寸640x324
一文帮助你学会弱电一卡通系统知识,多种素材提供!
图片尺寸802x509
深度剖析多奥智能门禁系统施工布线既繁复又精细艺术的章法与细节
图片尺寸640x466
人工智能门禁系统有哪些模块组成
图片尺寸1000x659
假期,赠送弱电工程门禁安装大样图,赶快来领取吧!
图片尺寸1033x541