闻喜县规划图

闻喜县中心城区 2021-2035年学校规划
图片尺寸782x855
闻喜县中心城区 2021-2035年学校规划
图片尺寸752x827
闻喜县中心城区 2021-2035年学校规划
图片尺寸758x830
每日一区闻喜经济技术开发区
图片尺寸665x551
产业园-闻喜县人民政府门户网站
图片尺寸1920x1408
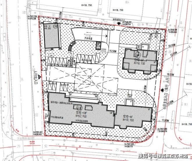
闻喜县京雄世贸港售楼处项目介绍--有发展空间吗
图片尺寸1080x921
规划设计案例:山西郝家窑美丽乡村_山西省运城市闻喜县礼元镇东古赵村
图片尺寸640x496
产业园-闻喜县人民政府门户网站
图片尺寸1920x1408
刘明灯调研城西新区项目建设_通城县
图片尺寸1080x608
闻喜:攻坚克难加快建设全力打造惠民工程|闻喜县|运城_网易订阅
图片尺寸600x480
龙之故乡 厚重闻喜
图片尺寸1071x606
闻喜县行政区划图
图片尺寸1387x970
2035运城市中心城区规划其中临猗县是运城市经济强县.
图片尺寸660x371
项目起点位于闻喜县郭家庄镇辛庄村,顺接在建国道342线闻喜县城过境改
图片尺寸582x405
闻喜县委副书记县长史玉江一行到礼元镇阜底村调研指导工作
图片尺寸600x384
山西省人民政府关于运城市规划批复
图片尺寸1058x1254
个个都是风水宝地!_闻喜县_陈平_华山
图片尺寸1072x549
活动"果园"倒春寒〞防灾减灾救灾技术指南黄河一号旅游公路(夏县段)
图片尺寸1920x1080
虹口新房一虹盛里房价一虹盛里售楼处电话户型图一地
图片尺寸660x552
运城5县现状分析:新绛,绛县,稷山,闻喜,垣曲
图片尺寸640x442