防火卷帘门安装示意图

防火卷帘门是一种适用于建筑大开口的防火隔热设施,产品在设计和安装
图片尺寸1650x1280
防火卷帘:分类,性能,卷门机,控制箱设置,精华汇总
图片尺寸660x1124
一张图带你了解防火卷帘门,挡烟垂壁! - 抖音
图片尺寸1080x1440
三种类型防火卷帘节点.
图片尺寸1280x1706
防火卷帘门的安装方法和步骤
图片尺寸500x418
河南洛阳防火卷帘——无机纤维复合防火卷帘安装方式
图片尺寸560x2239
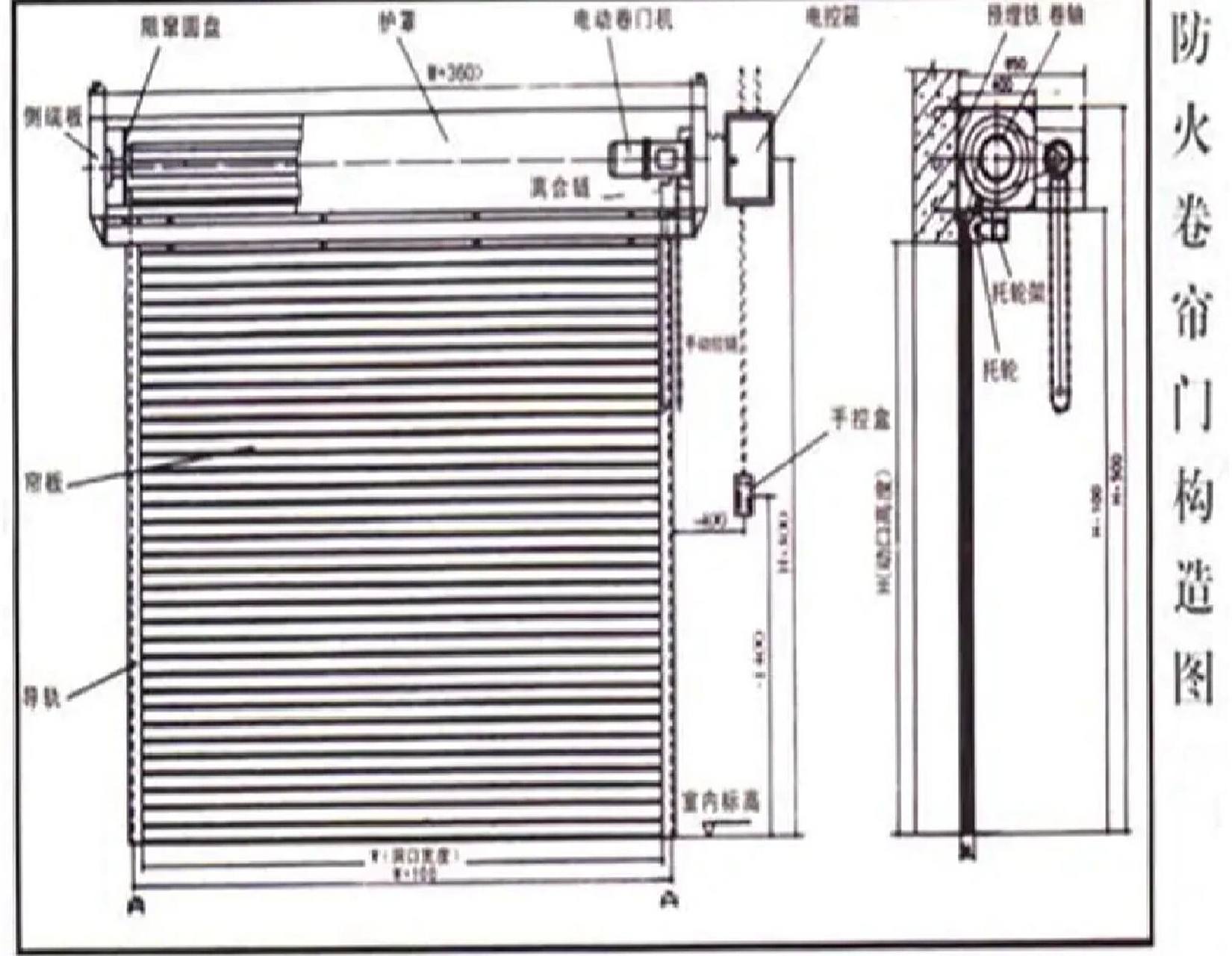
防火卷帘门导轨及连板面安装质量要求 一:防火卷帘导轨安装质量及要求
图片尺寸2275x1280
防火卷帘怎么安装捷坤门业告诉您
图片尺寸805x761
普通卷闸门内安装示意图
图片尺寸920x1303
(一)安装导轨上1,在防火卷帘门的两侧确定导轨安装位置,用锤线放出
图片尺寸732x506
卷帘门安装步骤
图片尺寸600x400
防火卷帘门导轨及连板面安装质量要求 一:防火卷帘导轨安装质量及要求
图片尺寸2277x1280
卷帘门1_12
图片尺寸750x1144
01防火卷帘的设计要求
图片尺寸698x717
防火卷帘门安装示意图
图片尺寸500x500
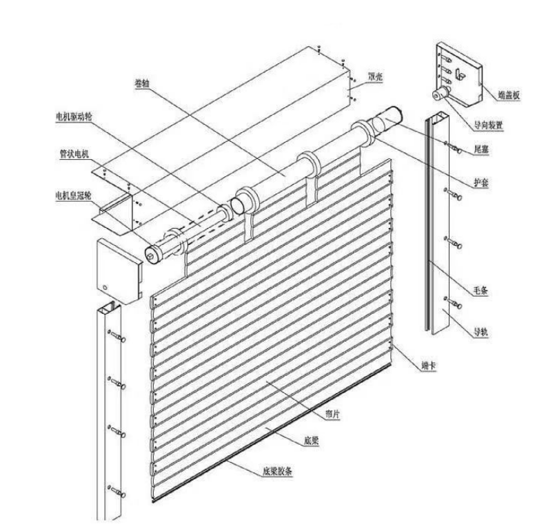
防火卷帘门电动机构详解
图片尺寸640x628
防火卷帘门的安装方法和步骤
图片尺寸500x257
新乡食品厂包装厂pvc自动快速卷帘门厂家直销
图片尺寸777x640
防火卷帘门电动机构详解
图片尺寸640x765
【消考宝】防火卷帘控制器安装位置探讨_装置
图片尺寸872x596