防雷引下线图集

pd5-2-11 防雷装置引下线的做法
图片尺寸2355x1639
防雷接点大样图上的柱筋作引下线,桩基础做接地极的示意图中,在距地0.
图片尺寸564x890
pd5-4-9 明敷接地引下线做法及安装
图片尺寸2431x1381
如图是女儿墙用φ12圆钢做避雷引下线吗
图片尺寸605x585
求避雷引下线长度计算过程
图片尺寸965x546
防雷引下线
图片尺寸1438x774
综合楼电气工程防雷接地大样图
图片尺寸504x560
施焊|引下线|等电位|电阻_网易订阅
图片尺寸561x565
多种防雷做法大样图及设计说明
图片尺寸490x491
关键词: 电气节点详图设备安装大样图防雷接地引下线
图片尺寸486x521
防雷接地大样图_cad图纸下载-土木在线
图片尺寸560x403
防雷引下线接闪器安装及等电位联结质量标准
图片尺寸1080x810
防雷接地图集_文档下载
图片尺寸656x460
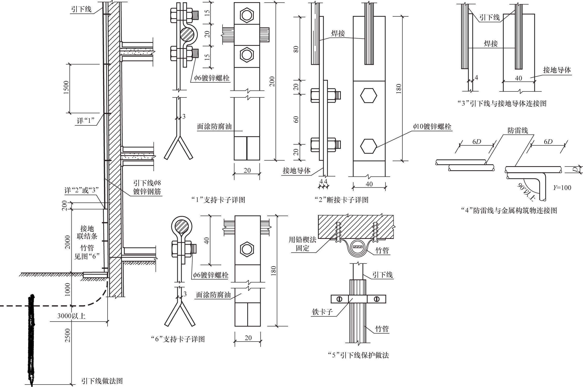
pd5-2-13 防雷引下线沿墙引下的安装
图片尺寸2417x1607
采用双面焊接,搭接长度大于6d防雷引下线焊接质量要点:利用结构柱内主
图片尺寸705x831
地凯防雷工程如人品做工程如同做人
图片尺寸786x817
装配式建筑:钢筋不连续,防雷引下线怎么做?
图片尺寸779x666
主要有利用柱内钢筋作暗装引下线,利用柱内钢筋作防雷接地体,屋面伸缩
图片尺寸560x313
采用双面焊接,搭接长度大于6d防雷引下线焊接质量要点:利用结构柱内主
图片尺寸552x663
图纸下载 cad图纸 防雷接地节点详图资源描述
图片尺寸898x636