防静电地板节点

秋季来临防静电地板您有选好吗
图片尺寸1200x900
机房装修铺设防静电地板施工设计方案教材
图片尺寸920x1301
抗静电地板节点大样
图片尺寸846x603
原创抗静电地板大样图
图片尺寸1024x682
抗静电地板节点大样
图片尺寸1086x496
全钢防静电地板厂家简析抗静电活动地板安装的步骤是什么
图片尺寸759x453
静电地板-2
图片尺寸598x458
机房抗静电地板铺装cad大样节点图等电位防雷接地架管cad施工图库
图片尺寸800x800
众鑫陶瓷全钢架空防静电地板,pvc防静电地板价格
图片尺寸1200x2312
有边防静电地板刨面图.jpg
图片尺寸1000x688
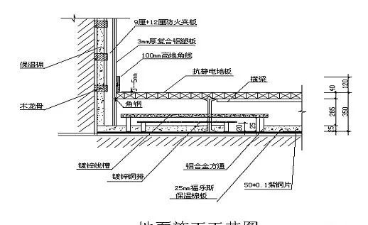
抗静电地板节点图
图片尺寸991x718
20年研发经验厂家教你如何选防静电地板
图片尺寸750x630
操作室防静电地板剖面图
图片尺寸610x432
沈飞全钢无边防静电地板 全钢地板
图片尺寸720x653
防静电地板如何正确施工规范及要求
图片尺寸518x317
硫酸钙防静电地板厂家陶瓷防静电地板防静电地板
图片尺寸700x427
抗静电地板cad节点图
图片尺寸820x595
机房防静电地板如何正确施工规范及要求一文解读
图片尺寸678x752
供应青岛防静电地板(图)
图片尺寸450x277
硫酸钙防静电地板
图片尺寸400x360