阿那亚酒店地图

早餐后我们辗转第二家阿那亚"隐庐酒店",尝试一下不同风格的感受.
图片尺寸2000x2667
阿那亚地图篇 需要的收藏哈,不清楚的可以咨询我哦
图片尺寸2276x1280
阿那亚住宿选房攻略之六期民宿篇 阿那亚的民宿目前有一期到六期.
图片尺寸2255x1280
阿那亚zui新民宿选择攻略!在阿那亚生活了几年,看着 - 抖音
图片尺寸1125x1495
阿那亚最新美食地图做海边最in的美食达人
图片尺寸1080x678
阿那亚aranya - 最佳位置loft 公寓 beidaihe gold coast best
图片尺寸1079x1455
阿那亚建筑地图|建筑师的精神家园:"未开放"参观之旅
图片尺寸680x676
阿那亚度假记三小镇其他
图片尺寸1080x770
阿那亚最新美食地图做海边最in的美食达人
图片尺寸768x484
在办理完酒店入住手续后,用办理入住时的证件信息在阿那亚app内注册
图片尺寸880x1186
阿那亚最新美食地图做海边最in的美食达人
图片尺寸765x484
阿那亚地图汇总.#春季摄影大赛 #我的春游攻略 #春季户外运 - 抖音
图片尺寸1099x1466
阿那亚最新美食地图做海边最in的美食达人
图片尺寸768x473
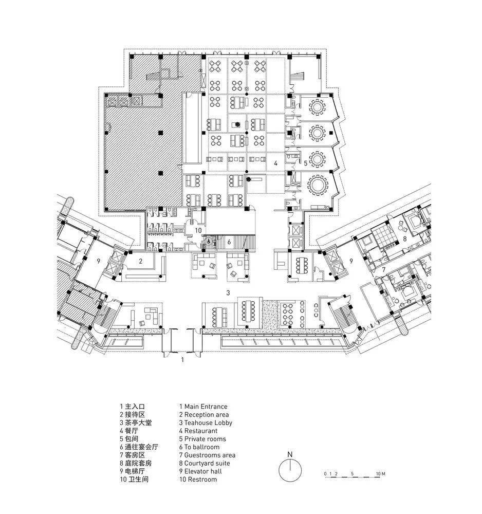
platasia阿那亚隐庐酒店
图片尺寸938x1000
阿那亚订房吃喝玩乐全攻略让我们心心念离北京最近最好玩的那片海
图片尺寸1080x797
从这里遇见那片海.初见阿那亚
图片尺寸2862x3957
阿那亚10英里公开赛招募来海边跑进春天里
图片尺寸1080x882
秦皇岛阿那亚游记
图片尺寸1066x842
去阿那亚看这一篇就够了
图片尺寸1080x1052
99阿那亚一晚半天旅游攻略~欢迎收看旅游碎碎念98 14日1 - 抖音
图片尺寸1080x1440