陈列馆平面图

华侨历史陈列馆展陈设计方案
图片尺寸1280x905
陶瓷陈列馆
图片尺寸1280x662
华侨历史陈列馆展陈设计方案
图片尺寸1280x905
中国长征文化第一馆——遵义会议陈列馆
图片尺寸640x960
展馆平面图
图片尺寸2752x1900
燕山大学校史陈列馆
图片尺寸1280x679
服装门店陈列设计平面展示图
图片尺寸1024x1586
南平市博物馆二层展厅地图
图片尺寸2804x1694
群艺馆平面流线图群艺馆平面图序厅1序厅2传说孝感唱游孝感1唱游孝感2
图片尺寸1280x905
展馆平面图点击下载《升达艺术馆展览申请登记表》e-mail:cipafe@163.
图片尺寸3204x2403
东馆二层平面图
图片尺寸5000x3507
第八届江苏书展展馆布局图
图片尺寸4253x2879
平面图
图片尺寸4961x3508
汉字文化发展史展厅陈设
图片尺寸1280x905
东阳档案馆博物馆陈列馆设计方案
图片尺寸3000x2250
展厅平面图 | 炎黄艺术馆
图片尺寸1200x847
5号馆实景图平面图尺寸图电路图场馆参数11号馆外景11号馆内景11号馆
图片尺寸2766x1978
开江红色文化陈列馆要大变样了!(附效果图)
图片尺寸1080x632
墨予| 巨鹿中学校史馆
图片尺寸3000x2143
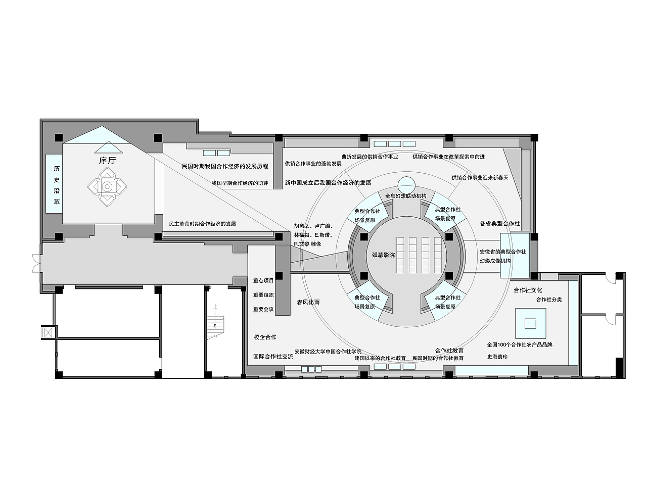
合作经济博物馆
图片尺寸1280x988