院落平面图

四合院空间的构成
图片尺寸640x1060
20款经典庭院设计平面图先收藏着准没错
图片尺寸620x518
一层平面图
图片尺寸640x937
300张经典庭院平面图素材
图片尺寸609x765
庭院平面图
图片尺寸658x854
20款经典庭院设计平面图先收藏着准没错
图片尺寸580x746
300张经典庭院平面图素材
图片尺寸640x458
平面图: 四合院分成两进院落,一进院落东南侧入户,用来日常的接椿会
图片尺寸640x670
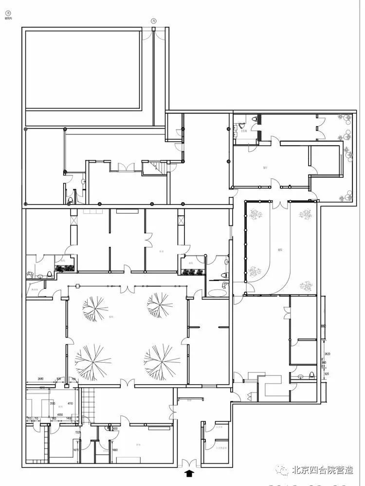
院落设计平面图
图片尺寸750x998
四合院栖居在院落享受生活本真
图片尺寸560x758
干货32张经典庭院平面图
图片尺寸640x507
院落景观设计彩色平面图psd素材下载
图片尺寸1024x1505
别墅庭院平面图
图片尺寸640x435
古代大户人家的院落分布(要平面图)
图片尺寸391x600
农村最适合四合院图片,含平面图及中式装修风格效果图-别墅工场
图片尺寸640x885
26x37米,农村一层中式四合院,二进院落,室内9室4厅
图片尺寸640x599
庭院设计平面图
图片尺寸905x640
平面002一进两进三进院落
图片尺寸2500x1768
吉林省吉林市于家新中式院落
图片尺寸1500x873
院落|院子|庭院_新浪新闻
图片尺寸870x1012