隔音墙原理

行业动态 - acoulax雅声乐-广州谷拓材料科技有限公司|吸音板|隔音
图片尺寸909x568
业内人士能否给些建议:墙体怎么做隔音?能达到什么效果?
图片尺寸567x467
隔音装修墙体要做隔音的原因和措施
图片尺寸865x628
家庭家居隔音墙的施工与方法
图片尺寸600x372
隔音墙安装示意图压缩机房隔音墙厚度:隔音墙的厚度越厚,隔音效果就
图片尺寸640x478
复合隔音板在隔墙的应用
图片尺寸317x260
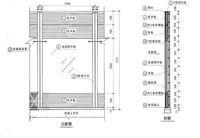
隔音墙结构解析图8.施工设计参考.
图片尺寸564x423
隔声墙面的构造图例
图片尺寸800x315
声屏障隔音降噪原理
图片尺寸680x469
隔声屏障的隔声原理教学资料
图片尺寸920x1302
隔声屏障的隔声原理
图片尺寸432x456
小区透明声屏障厂家高速公路铁路金属声屏障高架桥隔音屏隔音板墙
图片尺寸800x1040
青海声屏障声屏障造价声屏障安装声屏障厂家
图片尺寸580x392
隔声屏障降噪原理及示意图
图片尺寸312x200
隔声屏障降噪原理
图片尺寸920x1302
市政道路隔音墙的制作方法
图片尺寸286x443
剖析声屏障,原理与计算
图片尺寸750x354
epc声屏障设计原理与示意图?
图片尺寸495x195
【声屏障】 - 【格拉瑞斯声屏障厂家】详解声屏障的原理
图片尺寸856x472
高速声屏障隔音原理
图片尺寸1920x1760