集水坑怎么画

请问这个集水坑k134怎么画
图片尺寸1322x610
集水坑
图片尺寸1230x836
卡通手绘水坑元素
图片尺寸288x407
手绘水坑免抠素材
图片尺寸800x800
集水坑怎么画
图片尺寸1160x639
gtj2018集水坑的绘制方法
图片尺寸944x839
cn112359874a_一种地下室集水坑结构的施工方法在审
图片尺寸1971x1198
这个集水坑各出边尺寸不同如何绘制调整
图片尺寸1469x756
1是集水坑2是电梯基坑这俩分别要用什么绘制
图片尺寸1265x748
如图请问这个基坑怎么画用集水坑画么
图片尺寸718x408
集水坑混凝土垫层怎么画放坡那种
图片尺寸800x459
画吗,我用集水坑画就出现这种形式,想问一下板厚应该怎么-服务新干线
图片尺寸1686x1060
在人防顶板处的集水坑如何画
图片尺寸836x673
请问这种集水坑怎么画
图片尺寸663x451
老师这样的集水坑怎么画
图片尺寸1270x597
集水坑
图片尺寸778x521
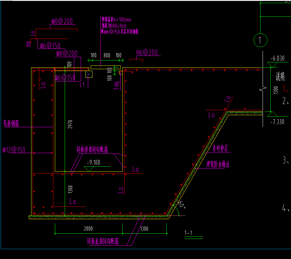
复杂的集水坑如何画截面如下图
图片尺寸1147x778
请问这种集水坑应该怎么定义?
图片尺寸4208x3120
集水坑
图片尺寸1339x824
不会弄的集水坑
图片尺寸1096x838