青年旅社平面图

一起在杭州开家国际青年旅舍
图片尺寸424x397
快题作业展丨清华大学2022年初试某大学城区青年旅社设计
图片尺寸1080x772
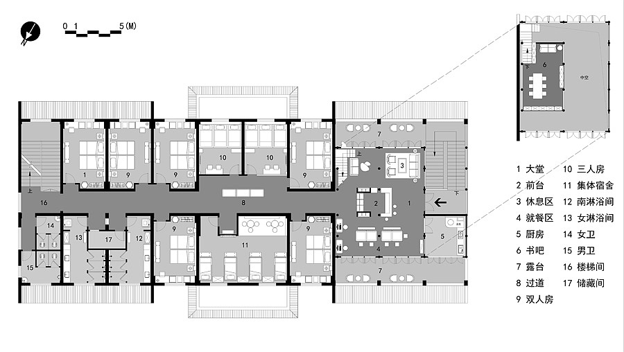
林州大峡谷青年旅社
图片尺寸1635x2128
林州大峡谷青年旅社
图片尺寸1531x2136
高椅古村 青年旅社
图片尺寸900x508
一起一起–室内青年共享营地青年旅社住宿旅馆
图片尺寸1700x1016
以色列特拉维夫womallenby胶囊青年旅舍
图片尺寸1286x1000
桐庐山涧房青年旅舍平面图3.jpg
图片尺寸760x537
今日分享三:青年旅社设计(第一弹)--大禹手绘2020寒假班建筑快题作品
图片尺寸720x509
可持续垂直村庄有机联系共享空间的青年旅社设计
图片尺寸1550x869
泗水小型青年旅馆平面图
图片尺寸707x1000
东京神乐坂高端青年旅社私密奢华的入住体验
图片尺寸960x767
快题作业展丨清华大学2022年初试某大学城区青年旅社设计
图片尺寸1080x810
旅舍 jugendgstehaus hauptbahnhof(中央火车站青年旅舍)
图片尺寸1024x720
第8页 (共20页,当前第8页) 你可能喜欢 国际青年旅舍 建筑案例分析
图片尺寸1080x810
快题解析同济08初试青年旅社设计
图片尺寸1280x863
新加坡coo 青年旅舍平面图-新加坡coo 青年旅舍第28张图片
图片尺寸1500x641
快题作业展丨清华大学2022年初试某大学城区青年旅社设计
图片尺寸1080x757
85design越南青年旅舍thevietnamhostel
图片尺寸380x380
苏州一起一起–湿地小鹿青年旅舍曹璞
图片尺寸800x976