食品店平面图

三原东环王宏利小吃店平面图
图片尺寸636x809
青岛市黄岛区公布的食品经营许可证申请流程
图片尺寸820x1024
粮油店食品设施布局平面图
图片尺寸519x778
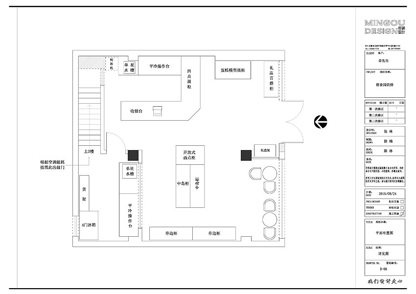
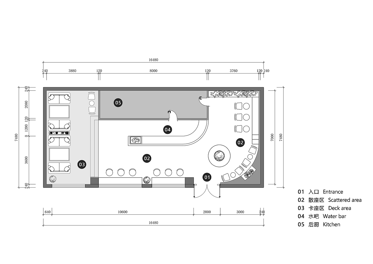
平面布置图
图片尺寸850x601
小吃店
图片尺寸1280x905
面包店设计
图片尺寸1124x899
一家面包店设计店铺设计平面施工图
图片尺寸1080x761
食品经营设施空间布局和操作流程 食品经营设施空间平面布局图
图片尺寸1034x1078
cad代画奶茶店平面布局图水吧冷饮茶点烘培蛋糕面包食品商业店铺
图片尺寸1000x1000
蛋糕店面设计
图片尺寸1467x1064
星沙零食水果店
图片尺寸3000x4201
平面布置图
图片尺寸1280x905
餐饮单位食品处理区(厨房)平面布局图
图片尺寸960x721
快餐店设计平面图欣赏设计图片赏析
图片尺寸1500x1125
平面规划图-德阳寿司店第3张图片
图片尺寸1100x688
食品经营设施空间布局图_(办食品流通许可)
图片尺寸603x768
食品流通许可证办理时需要的经营场所平面图
图片尺寸920x651
食品经营设施空间布局图食品经营设施空间布局图怎么画2022已更新今日
图片尺寸474x355
烘焙店平面布置图
图片尺寸850x601![食品经营设施空间布局图[1]](https://i.ecywang.com/upload/1/img1.baidu.com/it/u=653383328,677505395&fm=253&fmt=auto&app=138&f=JPEG?w=657&h=500)
食品经营设施空间布局图[1]
图片尺寸699x532