首开锦鲤户型图

首开锦鲤户型
图片尺寸1564x3165
> 户型详情
图片尺寸720x540
首付103万上车朝阳东五环首开锦鲤第二轮递补选房即将开始
图片尺寸641x334
> 全部户型
图片尺寸563x578
给你一个属于自己的家!首开锦鲤让北京不再是一个人的北京
图片尺寸454x594
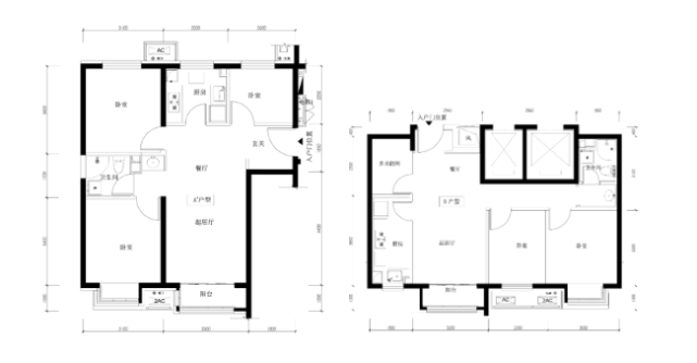
f户型
图片尺寸800x600
首开锦鲤即将网申临铁小两居总价308万起
图片尺寸740x860
f户型(四房两厅两卫127㎡) ,4室2厅,127平米
图片尺寸445x600
d户型
图片尺寸794x700
1#0102户型
图片尺寸600x399
凤凰花城·锦鲤:首付40万起 集美准现房
图片尺寸740x767
2016年大四房07泳池水系景观
图片尺寸1080x839
9栋b户型
图片尺寸800x624
扬州会怎样?|户型|龙城|如园|准现房|扬州市|大运河_网易订阅
图片尺寸660x741
张家港少见97平户型竟能做到这样锦鲤花园
图片尺寸653x632
1#b户型
图片尺寸800x695
上海金山建发朗玥官方售楼处电话楼盘详情建发朗玥图文解析
图片尺寸660x896
滨江溪映听庐|杭州(滨江溪映听庐)楼盘详情-房价-户型-容积率|小区
图片尺寸1080x1439
招商蛇口天青府长沙招商蛇口天青府房价户型图样板间交房项目配套
图片尺寸1080x1039
建发朗玥建发朗玥最新房价房型图户型图交通地铁楼盘地址
图片尺寸1080x1466