馨越公寓平面图

馨越公寓师傅又说1房没有2房住着舒服,相差也就5,6百元,如果后续有
图片尺寸3072x4096
馨宁公寓户型平面图.jpg
图片尺寸1653x2338
小崔所居住的馨越公寓,位于普陀区千阳路,是上海市筹建的第一批三个公
图片尺寸640x900
馨越公寓-"小区配套设施齐全,领包入住,周边地铁2号."-大众点评移动版
图片尺寸700x525
上海市筹公租房馨越公寓户型
图片尺寸1080x1439
不限户籍上海又一区公租房房源来了最低1231元月
图片尺寸1080x1527
58㎡跃层小公寓,清爽宜人温馨舒适,装下一家三口的幸福!
图片尺寸1043x1566
base living服务式公寓(上海张江店)| 锋思设计
图片尺寸1200x1600
今日成果累瘫了馨越公寓
图片尺寸1080x1439
1,根据相关公租房运营机构制定的供应方案,目前馨宁公寓,馨越公寓
图片尺寸1394x1410
上海建筑
图片尺寸1420x1071
深圳万象华府地铁口-彭山新闻,彭家坪万象汇规划
图片尺寸1200x800
新房网 岳麓区 卓越中寰 loft公寓 参考总价:暂无 户型:1室1厅1卫建筑
图片尺寸4795x6022
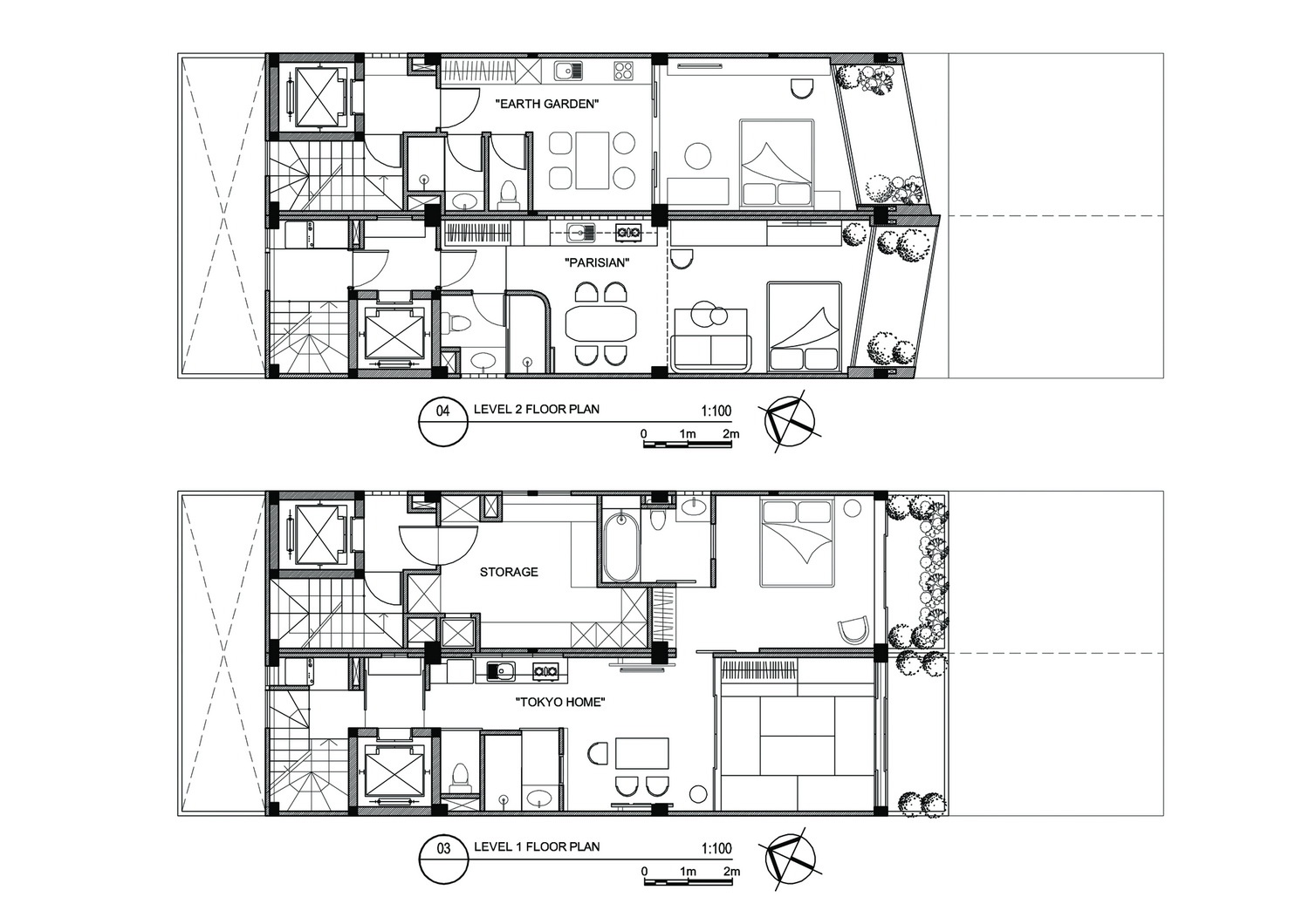
五层和屋顶平面图△ 立面图△ 剖面图△ 剖面图项目类型:公寓项目地点
图片尺寸1500x1060
网站导航 房产 房屋出租 整租|合租|公寓 房屋买卖 二手房|新房|卖房
图片尺寸576x394
富越盈座 单身公寓
图片尺寸480x300
卓越嘉悦40㎡loft公寓
图片尺寸900x600
一房两房可选969696上海馨乐庭长寿路公寓酒店坐落于长寿路上
图片尺寸1080x1439
平面布局图
图片尺寸943x843
【泊悦公寓】22栋a户型loft
图片尺寸1000x737