高压令克合闸顺序图片

电闸,电闸之间连接的方法.请教一下专业人士
图片尺寸918x788
对接口子母拉口16823531杆高压闸绝缘令克棒用连接头对接头接
图片尺寸787x1051
供应hrw12型跌落式熔断型配件/跌落式开关令克/管套/高压跌落险管
图片尺寸768x607
高压柜「合闸」状态
图片尺寸2000x2666
维修手抓令克棒防雨接地线接地棒实用手柄家用闸杆杆子高压线方便
图片尺寸712x740
高供低计用户 高压令克进线熔丝
图片尺寸2059x2000
令克棒 高压拉闸杆 伸缩绝缘令克棒 防雨操作杆 绝缘操作杆
图片尺寸1044x355
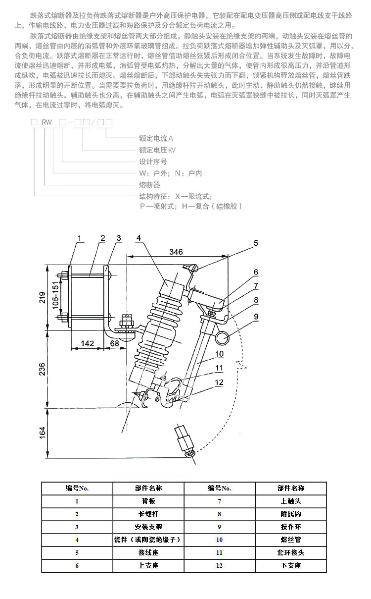
rw11-10 12/100-200a户外高压跌落式熔断器 令克开关10-12kv
图片尺寸750x480
还有其他的横担,如常说的跌落保险横担,刀闸横担,令克横担,引线横担
图片尺寸377x449
二次融合开关32台,隔离刀闸44组,新装及更换避雷器121只,更换令克102
图片尺寸3648x2736
10kv及以下配网设备标识的制作安装_文章_圈子_电气
图片尺寸1080x1528
rw1012100a200a户外高压跌落式熔断器10kv柱上保险令克开关
图片尺寸800x800
变压器护罩跌落刀闸护套硅橡胶电力令克绝缘保护罩设备线夹-1-2的
图片尺寸800x800
千惠侬定制闸杆 高压绝缘棒绝缘鞋手套 验电笔 帽 配电房电力工具柜
图片尺寸800x800
rw12-10/100 户外高压跌落式熔断器10kv令克开关 rw12-12熔断器
图片尺寸670x356
上海飞控户外高压跌落式熔断器hprwg2-35kv/100-200a令克开关熔断
图片尺寸750x1128
适用于定制高压跌落式熔断器保险丝10kv户外rw1215100200a保险令克
图片尺寸750x1209
现货批发供应 便携式高压拉闸杆可调节电力绝缘伸缩式令克棒
图片尺寸750x880
厂家促销 绝缘伸缩式高压拉闸杆 可调式令克棒 现货供应 批发
图片尺寸525x800
chkge高压户外跌落式熔断器rw1210200跌落保险令克开关10kv
图片尺寸750x903