鸿翔传承府户型图

鸿翔传承樾府户型图介绍
图片尺寸1600x1210
鸿翔传承樾府户型图介绍
图片尺寸1600x811
户型图
图片尺寸1125x872
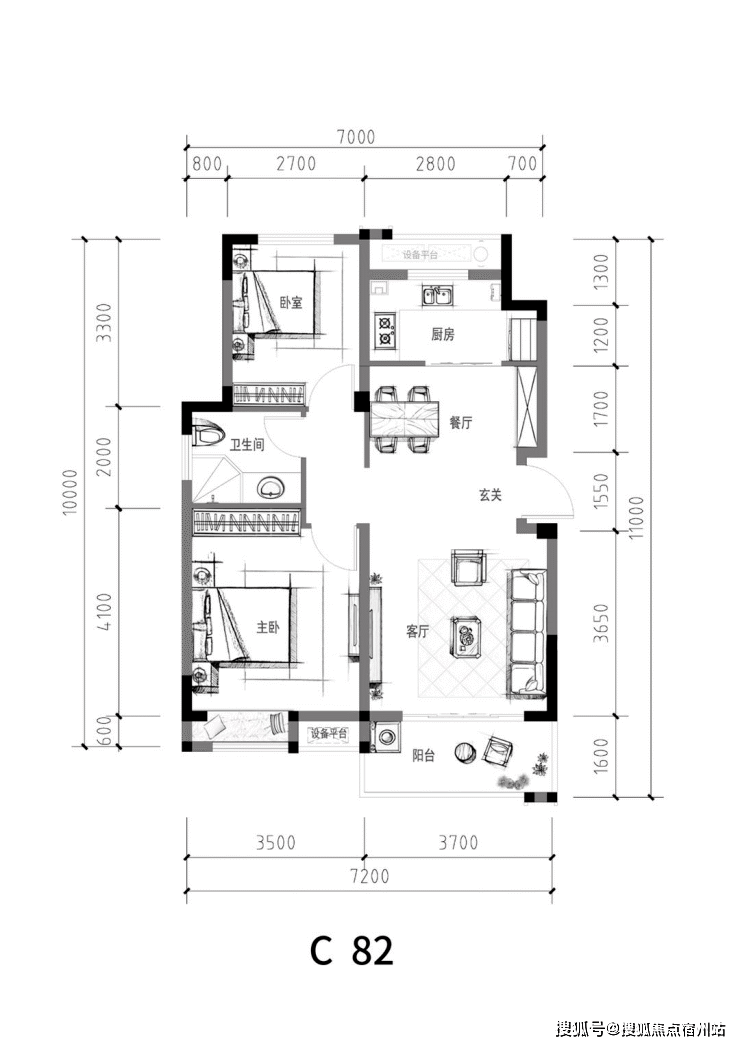
嘉兴鸿翔百盛东望金邸4室2厅3卫户型图-嘉兴楼盘网
图片尺寸2000x1543
传承樾府—「全嘉兴都没有过」的创新叠墅—嘉兴鸿翔传承樾府详情
图片尺寸1080x1254
海宁鸿翔杨柳郡户型图,鸿翔杨柳郡平面图,小区楼盘户型-海宁楼讯
图片尺寸480x720
建面约120方户型图
图片尺寸641x629
恒弘城博望府3室2厅1卫121.00平方米 - 临沂百房网
图片尺寸800x597
传承樾府—「全嘉兴都没有过」的创新叠墅—嘉兴鸿翔传承樾府详情
图片尺寸1080x1179
鸿翔鸿樾府户型设计怎么样小区环境好不好
图片尺寸1200x1249
鸿翔玖望a户型约220平方6室2厅5卫户型图
图片尺寸2000x1000
鸿翔传承府
图片尺寸200x150
鸿翔鸿樾府户型设计怎么样小区环境好不好
图片尺寸1200x1200
楼盘百科嘉兴南湖鸿翔天誉府房价面积房源售楼处电话
图片尺寸1920x1280
平湖鸿翔宝龙北宸里售楼中心户型图总价低
图片尺寸740x1046
传承启元售楼处首页网站传承启元售楼中心欢迎您地址备案价户型图
图片尺寸715x643
传承启元售楼处首页网站传承启元售楼中心欢迎您地址备案价户型图
图片尺寸715x642
楼盘百科嘉兴南湖鸿翔天誉府房价面积房源售楼处电话
图片尺寸1920x1280
鸿翔鸿樾府售楼处电话400-000-0460转4444【官网】鸿翔鸿樾府 24小时
图片尺寸1080x1080
首页:鸿翔隐秀府售楼处电话_#@楼盘详情_鸿翔隐秀府售楼处_开发商欢迎
图片尺寸1076x743