麻将馆平面图

麻将包厢接待大堂装修效果图
图片尺寸8404x5941
宁波一家棋牌室平面
图片尺寸3309x2339
麻将馆设计方案进行中麻将馆如何设计
图片尺寸815x862
三层棋牌室平面图.jpg
图片尺寸1600x1131
麻将展览馆
图片尺寸1080x1439
杭州简约风棋牌室装修价格,杭州简约风棋牌室装修,杭
图片尺寸932x667
棋牌室设计
图片尺寸1080x648
麻将会所局部设计_平面布置图
图片尺寸2271x1988
棋牌室平面图
图片尺寸514x471
富阳棋牌室装修案例_众易居装修效果图大全
图片尺寸750x1079
棋牌室部分平面图
图片尺寸760x537
大学生辞职创业开麻将馆,项目未必能复刻,家长的态度值得肯定 #30天
图片尺寸1877x1280
某地棋牌室装修设计图
图片尺寸610x432
棋牌室空间设计
图片尺寸560x433
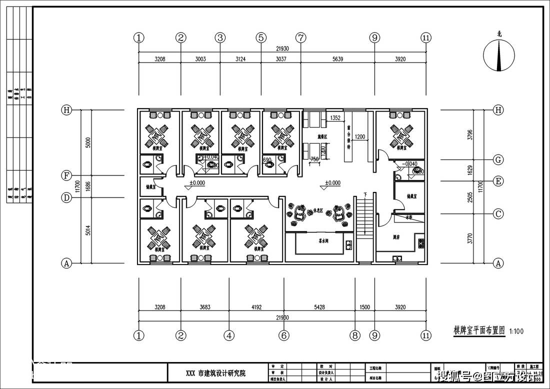
二,注重空间规划和布局在设计麻将馆平面图时,首先要明确麻将馆的功能
图片尺寸1100x778
南宁麻将馆设计装修平面布局—灿源装饰
图片尺寸600x706
内容简介 酒店棋牌室设计图 包括:平面图,地面图,天花图.
图片尺寸640x480
交稿 先把平面图发上来,看看是否可行?如果可以就照这个出效果图.
图片尺寸1754x717
风格图纸张数:10张包含图片:效果图内容简介 (10张) 包括:平面图
图片尺寸560x420
棋牌会馆-340平-混搭-平面布置图.jpg
图片尺寸740x500