龙园大观户型图

朗泓龙园大观二期
图片尺寸2000x2715
朗泓龙园大观二期
图片尺寸2000x2715
龙岗龙园大观售楼处地址备案价均价房价区间地铁项目优劣势户型图
图片尺寸1035x1152
龙园大观龙园大观首页网站丨龙园大观楼盘详情户型配套
图片尺寸740x687
朗泓龙园大观一期
图片尺寸2220x1665
朗泓龙园大观一期
图片尺寸1000x750
贵港新房 港北区 盛世荷悦府 主力户型
图片尺寸900x757
朗泓龙园大观二期
图片尺寸1000x750
南宁新房 西乡塘区 融创融公馆 主力户型
图片尺寸1600x2156
朗泓龙园大观二期
图片尺寸1000x750
阎良龙记·观园户型图
图片尺寸1066x800
龙园大观
图片尺寸1200x900
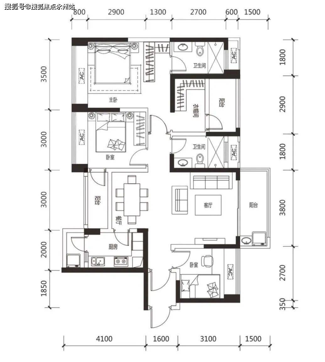
朗泓龙园大观89.00㎡d/c户型3室3厅2卫1厨-副本
图片尺寸800x800
龙岗朗泓龙园大观地址在哪里?周边规划怎么样?
图片尺寸700x824
龙园大观楼下配套齐全中间楼层满五年税费少
图片尺寸1000x750
朗泓龙园大观一期
图片尺寸1000x750
朗泓龙园大观(一期)2室2厅1卫69.16㎡南249万
图片尺寸2220x1665
302万起 了解香江别墅ii户型的详情信息 立即咨询 所属楼盘:香江别墅
图片尺寸1280x960
龙岗朗泓龙园大观地址在哪里?周边规划怎么样?
图片尺寸700x783
万科龙园大观2期新著(深圳)万科龙园大观2期新著欢迎您丨龙园大观新著
图片尺寸1080x1469