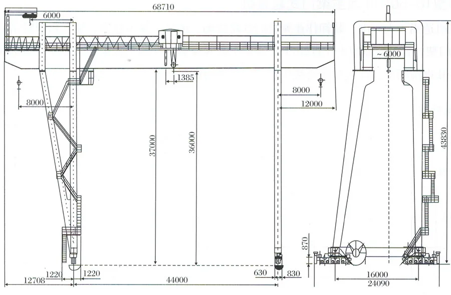
龙门起重机结构

门机监控系统为龙门吊的安全运行提供了保障_起重机_技术_操作
图片尺寸750x750
用于地铁施工的门式起重机
图片尺寸1648x2168
龙门吊.jpg
图片尺寸756x393
一种可安全调节间距的双梁门式起重机
图片尺寸1689x1668
mh型门式起重机|mh型单梁龙门起重机
图片尺寸1500x1023
cn108358051a_一种可自动变跨式龙门起重机在审
图片尺寸2064x1961
青岛u型双梁门式起重机荆州双梁工程门机u型龙门乌鲁木齐u型双主梁
图片尺寸991x1406
mh型电动葫芦门式起重机
图片尺寸859x452
一种移动式高铁专用门式起重机的制作方法
图片尺寸518x453
超大型500吨级bop龙门起重机研制
图片尺寸547x670
一种小型可调节龙门吊
图片尺寸942x1319
一种无轨万向行走液压式升降龙门起重机的制作方法
图片尺寸455x392
l型5t单主梁吊钩门式起重机主要技术参数
图片尺寸1331x654
一种门式起重机的制作方法
图片尺寸418x444
门座起重机是什么
图片尺寸675x530
rtg 集装箱龙门起重机 50ton 200 吨双梁自由旋转柴油司机
图片尺寸900x590
第十一章门式起重机ppt课件
图片尺寸920x690
龙门起重机.戴着一副金属框.向量eps10格式
图片尺寸1129x1100
一种可安全调节间距的双梁门式起重机的制作方法
图片尺寸1000x987
座式起重机的臂架都是由左右腹板和上下面板四块钢板组成的箱型梁结构
图片尺寸1000x868