10乘10米的户型图

农村自建房设计,户型面宽10米乘以10米
图片尺寸1920x2560
农村自建房10x10米户型,平面转三维模型,家人看户型更方便了
图片尺寸635x1028
10米乘10米左右房屋设计图户型方正过年回家有底气
图片尺寸640x638
农村三间房子的设计 10米乘10米 两层
图片尺寸1753x1240
20套10x10米新款农村别墅,占地小功能挺全,小户型也迎来了春天
图片尺寸640x673
10米乘10米左右房屋设计图户型方正过年回家有底气
图片尺寸640x741
10米面宽自建房 这个户型算典 后悔看晚没
图片尺寸600x703
10米面宽自建房 这个户型算典 后悔看晚没
图片尺寸600x765
10×10米二层半现代别墅,占地仅105平,拥有6.
图片尺寸3253x3222
0x10.0米,户型方正,配色鲜艳,咖色文化石时尚,接地气.第一套
图片尺寸650x741
10×10米农村别墅,占地面积不过百,小户型也迎来了"春天"
图片尺寸900x1074
10米乘10米左右房屋设计图户型方正过年回家有底气
图片尺寸640x642
10米乘10米左右房屋设计图户型方正过年回家有底气
图片尺寸640x770
20套10x10米新款农村别墅,占地小功能挺全,小户型也迎来了春天_新房子
图片尺寸640x571
10x10米农村别墅这么大气不建一栋都不好意思回家过年
图片尺寸844x851
2栋宽10米多的两层别墅,带大露台,户型二在农村是香饽饽
图片尺寸950x956
进深10米的农村房屋户型图看看这几款是不是你想要的设计图
图片尺寸640x588
10x10米小户型二层欧式别墅,6室3厅大气美观,适合农村自建
图片尺寸1080x1046
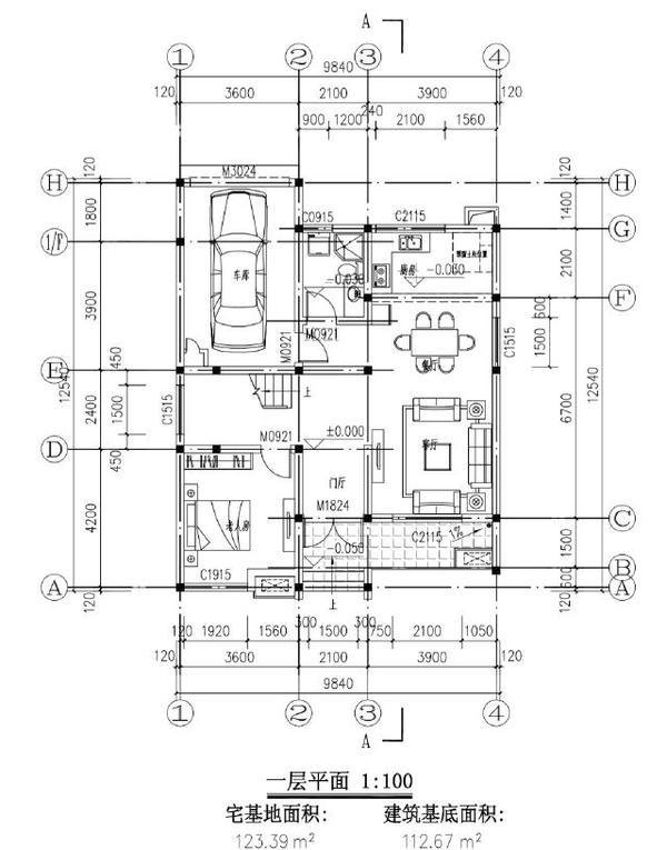
10米x10米自建房设计二层户型图
图片尺寸800x901
户型|阳光房|造型
图片尺寸640x659