12乘12米的户型图

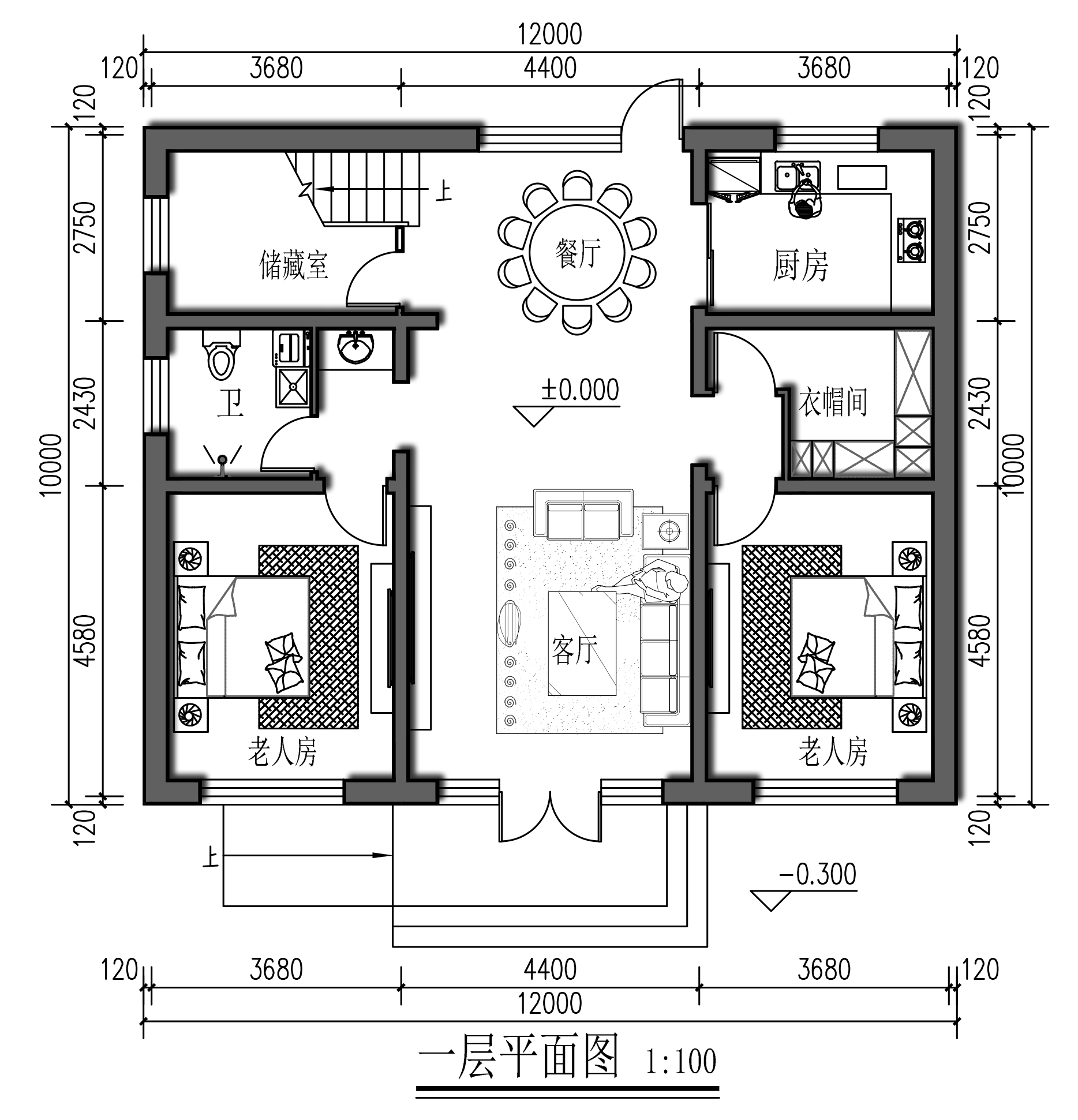
第一套户型基本信息占地尺寸:12.2m×10m占地面积:122696
图片尺寸1868x1941
回老家建房就建一座这样的小院吧,面宽12米,3室1厅,让身心放松
图片尺寸3000x3431
开间12米×进深9米,一层自建房设计
图片尺寸2160x2858
农村自建房三,开间12米宽x10米深,占地120平-度小视
图片尺寸843x1498
12米开间三层临街房.这是一栋临街小房,底层是商铺,自己干点 - 抖音
图片尺寸1440x2016
12乘12米二层自建房设计,简约大方,效果时尚
图片尺寸1913x1837
农村自建房开间12米进深11米户型图
图片尺寸576x1024
农村自建房开间12米进深10米户型图
图片尺寸1080x1920
自建房10米乘12米,新中式风格
图片尺寸1920x2336
农村自建现代风别墅,面宽12米多,4室1厅且所有卧室都向阳,真棒
图片尺寸3500x3504
开间12米1进深12米,自建房平面布局设计 - 抖音
图片尺寸806x1570
面宽12米,进深12米,二层户型平面图.
图片尺寸1500x1104
自建房10米乘12米,新中式风格 紧凑型的10米三开间布局,拿走不谢!02
图片尺寸1920x2342
12x10米回头率百分百的别墅,就属这一栋,雅致田园风格谁不爱
图片尺寸660x671
自建房面宽8米进深12米户型图
图片尺寸1080x1920
12x12米自建房 因为我喜欢把厨房放东北角.所以把原图镜像互换了.
图片尺寸799x907
农村自建房设计二层,面宽12米,进深9米 农村自建房设计二层,面宽12米
图片尺寸960x1280
开间10米进深12米的二层小别墅平面图!#城里是房乡下是家 - 抖音
图片尺寸1220x1645
农村自建房户型设计二层,面宽12米进深8米 可接家装自建房户型设计
图片尺寸960x1280
四层豪宅户型平面图.面宽13.5米,进深12米,四层(可参考 - 抖音
图片尺寸731x992