12米x15米建房设计图

农村12*12.5米三层别墅自建房#农村自建房 #图纸设计 - 抖音
图片尺寸1160x1920
5米三层别墅自建房 #农村自建房 #别墅图纸 #图纸设计
图片尺寸1300x1920
5套12x10米农村别墅,毛坯造价三十多万,家家都能建
图片尺寸699x711
朋友们,上次我给大家展示了三套12米宽的农村建房设计图纸,大家的热情
图片尺寸1868x1941
农村12*12.5米三层欧式别墅#农村自建房 #图纸设计 # - 抖音
图片尺寸1082x1920
农村自建现代风别墅,面宽12米多,4室1厅且所有卧室都向阳,真棒
图片尺寸3500x3504
朋友们,上次我给大家展示了三套12米宽的农村建房设计图纸,大家的热情
图片尺寸3469x3735
农村建房宽12米,五套户型设计大公开,总有一套适合你!
图片尺寸640x715
5米,三层户型平面
图片尺寸748x1018
农村自建房三,开间12米宽x10米深,占地120平-度小视
图片尺寸843x1498
二层乡村自建房,12乘12米,方正大方
图片尺寸2468x2416
别墅自建房12x65户型图户型方正造价不高
图片尺寸1280x905
转载请注明出自别墅设计网:https://tuzhizhijia.com/ 千
图片尺寸640x727
12x10.5米农村自建房,庭院这么大,做花园最好!
图片尺寸640x656
农村自建二层平屋顶别墅,面宽12米多,3室1厅还有书房,很不错啊
图片尺寸2500x1904
12米x12.5米农村自建房.两层坡顶带露台经典实用施工方案 - 抖音
图片尺寸844x1372
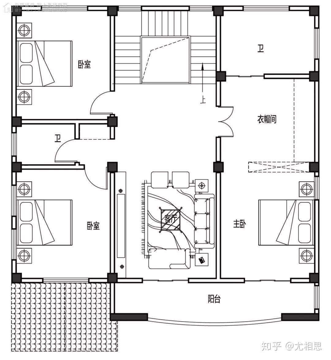
这样的设计极为符合农村人的生活习惯,同时也显示了室内大格局的霸气.
图片尺寸1080x1175
雅舍建房(图片右下角)五百套农村自建房别墅设计施工图纸任你选!
图片尺寸1080x997
农村12x9.5米三层别墅自建房#农村自建房 #图纸设计 # - 抖音
图片尺寸1256x1920
112米x125米农村自建房平面方案二
图片尺寸1080x1306