120普通农村建房设计图

120平新中式农村自建房
图片尺寸1080x1920
占地120平方米的农村自建房平面设计,喜欢看过来!#乡村自建 - 抖音
图片尺寸1170x1664
6款120平方农村别墅户型23层的都有
图片尺寸640x713
新农村二层楼别墅图纸,简单又温馨,家的感觉-建房圈
图片尺寸800x876
120平方米2层美式乡村风格房子设计图-建房圈
图片尺寸800x764
四川占地120平的农村自建房墅设计图分享
图片尺寸964x861
农村自建房120平米的宅基地怎样建二层平房
图片尺寸640x619
农村自建房120平米的宅基地怎样建二层平房
图片尺寸640x623
欧式豪宅别墅设计图纸二三层半农村自建房120平小洋房全套效果图
图片尺寸960x960
自贡贡井二层自建房设计,外观简洁,清新优雅-建房圈
图片尺寸800x695
农村建房设计通用图集(Ⅱ)-120平方米
图片尺寸1358x910
120平方自建房
图片尺寸922x741
3套农村经典120平农村自建房7间卧室带烤火房和晒台造价25万
图片尺寸554x535
宅基地120平怎么建房?大套间 健身房 阁楼,二层简欧,造价经济
图片尺寸640x614
三层农村自建房屋,新中式复式别墅,带地下室,占地120平方米
图片尺寸900x750
自建房120平最合理户型图新农村住房就要这样建
图片尺寸800x600
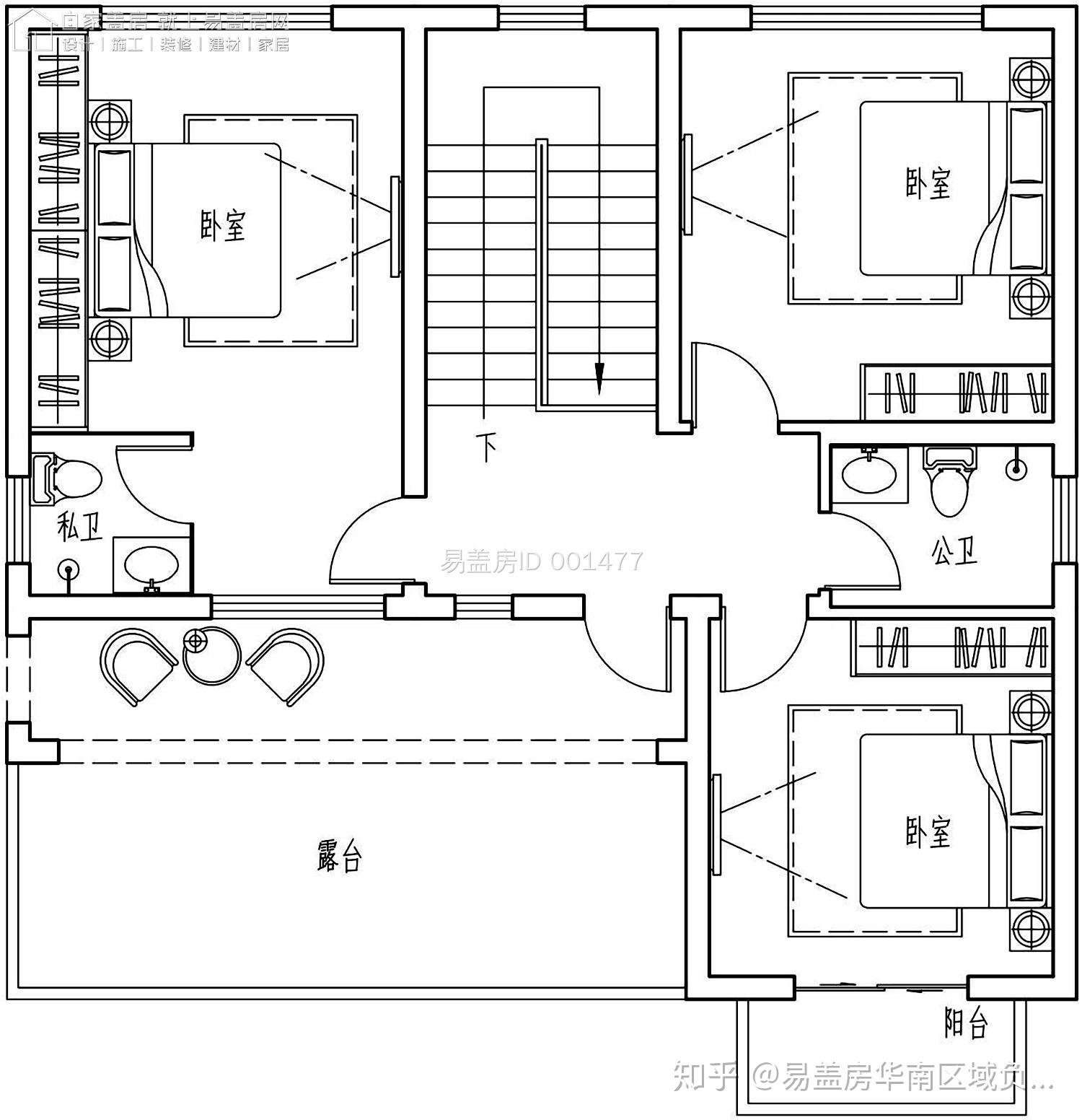
农村三层自建房三层面积120平方米,怎么设计好看? - 知乎
图片尺寸1500x1552
农村自建房120平米的宅基地怎样建二层平房
图片尺寸640x596
3款120平米的农村自建房,二层造价15万
图片尺寸612x792
农村120平最合理别墅户型图建一栋享受美好人生
图片尺寸640x828