12g08管沟图集

新12g08管沟及盖板图集pdf格式免费版
图片尺寸613x399
管沟
图片尺寸500x400
这个管沟的盖板厚度怎末看
图片尺寸1279x1114
你好,想知道电缆管沟的h值是多少,怎么来的?
图片尺寸4160x3120
图片尺寸1437x998
图片尺寸1080x810
12g4-12-b2地沟做法图集
图片尺寸816x581
求室外管沟内管道支架的计算方法或图集
图片尺寸1706x1280
写出图13中涂料层及水泥砂浆层的作用补齐底板厚度a和盖板宽度b的尺寸
图片尺寸697x564
甘肃省_甘12g4
图片尺寸737x539
地沟
图片尺寸1099x680
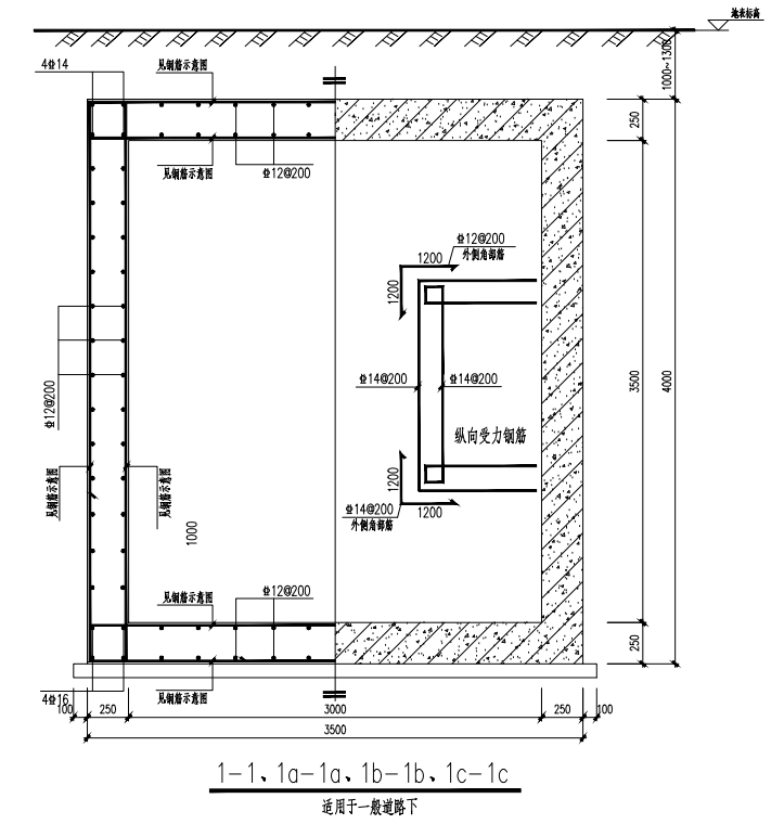
古交综合管沟节点详图
图片尺寸400x300
图片尺寸723x772
8,第18页的混凝土模块井和灌芯混凝土套什么定额
图片尺寸1327x925
请问砖砌偏沟式双箅雨水口图集上有但定额无子目,套哪个?
图片尺寸1044x766
排水管沟开挖回填施工图cad图纸
图片尺寸1527x1080
gb502682008给水排水管道工程施工及验收规范pdf标准说明
图片尺寸905x1280
15s412屋面雨水排水管道安装
图片尺寸1600x1131
15s412屋面雨水排水管道安装
图片尺寸1600x1131
图片尺寸2304x1728