135平米房子设计图

35万135平米现代三房装修效果图,金沙湖135平现代35万装修案例效果图
图片尺寸1080x910
装修设计 贵阳装修 贵阳装修案例 135平米三居室案例
图片尺寸2450x1966
8万135平米美式四房装修效果图,135m05美式四室两厅装修案例效果图
图片尺寸2970x2100
9万135平米现代三房装修效果图,135现代轻奢装修案例效果图-齐家装修
图片尺寸1600x1131
135平方|全国经典4房|户型优化|户型改造|室内设计案例分 - 抖音
图片尺寸1440x1710
135平米现代风格三居室预算7万点击看效果图绿地骊山花城装修
图片尺寸2789x2179
中俊理想城b户型4室2厅135平米
图片尺寸860x836
东方明珠135平米现代简约风格装修设计效果图
图片尺寸1749x1483
135平三房两厅新布置求指教
图片尺寸1600x1280
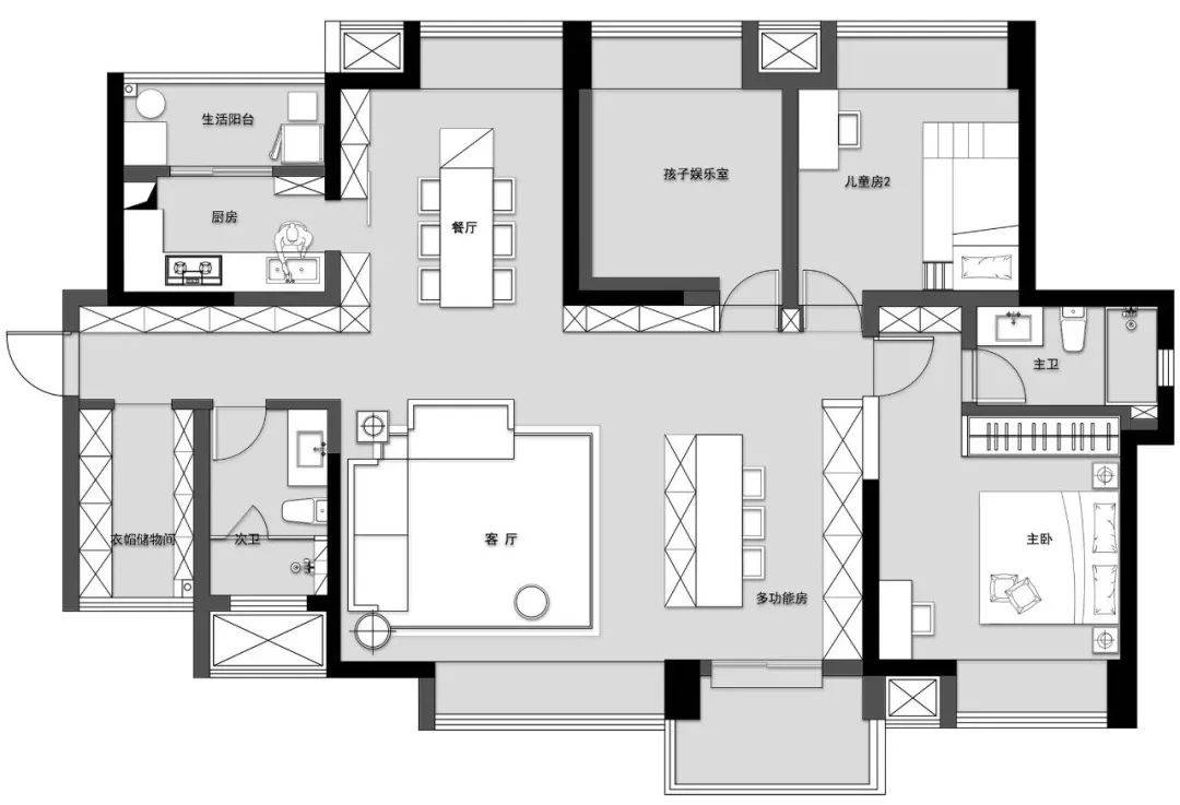
135㎡标准层户型 ,4室2厅,135平米
图片尺寸600x600
135平米中式风装修,四居室的房子越看越有品!
图片尺寸640x469
三栋楼座均位于项目最南侧,两个单元,一梯两户设计,主力销售135平米
图片尺寸800x916
135平米的现代简约风三居室案例,房子原本是四居室的格局,设计师把
图片尺寸1080x737
怡丰森林湖135平方三室两厅装修案例设计思路说明:通过与业主的段次
图片尺寸750x681
成都135平方米房子装修半包价格
图片尺寸638x800
135平米新中式风格中式现代设计图片赏析
图片尺寸1000x844
135平米三居室现代装修案例
图片尺寸1600x1280
135平户型图
图片尺寸560x427
以下就是本套墨斗小区小区135平米四居室房子的户型图
图片尺寸640x554
简欧风格三居室135平米17.
图片尺寸1200x1017