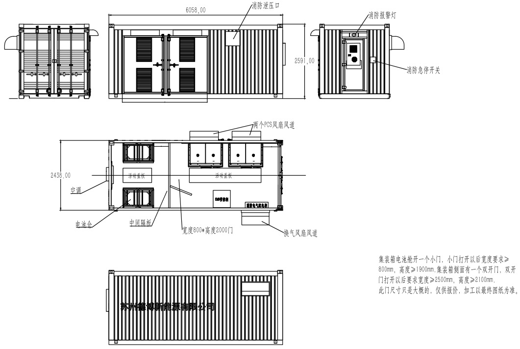
20尺集装箱图纸

20尺储能集装箱,储能电站,微电网,储能模块 es20m03
图片尺寸1061x711
20尺高柜标准图纸标准集装箱,下载后可以获得cad图纸.
图片尺寸1500x1112
20英寸标准集装箱钢结构cad图纸cad版
图片尺寸610x432
急需20英尺和40英尺两种集装箱的cad图(4个立面),高人给解围?
图片尺寸717x486
20英寸标准集装箱钢结构cad图纸cad版
图片尺寸610x432
集装箱20尺高柜cad图纸
图片尺寸862x545
集装箱的制作方法
图片尺寸1000x796
标准集装箱结构尺寸详图cad图纸
图片尺寸1200x800
干货!为什么20尺货柜在外贸实践中出现的频率很高?
图片尺寸640x400
集装箱房子分布图
图片尺寸1440x1020
经典20尺40尺标准集装箱房施工图纸cad图可编辑cad图纸
图片尺寸610x432
中开门式小集装箱结构图下载_汽车/运输/输送_机械图纸 - 机械5
图片尺寸820x390
集装箱图纸
图片尺寸343x523
钢结构集装箱图纸
图片尺寸610x455
外贸集装箱尺寸规格表
图片尺寸572x523
kta38标准20尺集装箱箱式发电机组 - 电机图纸 - 沐风网
图片尺寸575x795
20尺新集装箱 全新6米货柜 仓储装货出口海运仓库改装活动房
图片尺寸1290x1825
20尺40尺国际标准集装箱cad施工图下载-编号17437710-cad图纸-我图网
图片尺寸1024x3541
20尺标柜设备集装箱 - 交通运输图纸 - 沐风网
图片尺寸300x225
集装箱图纸02
图片尺寸708x566