24平米公寓设计图

摩宿公寓 1室0厅2卫 24平方卧室12.14平米东普通窗卫a0.
图片尺寸533x400
蜗居变豪宅 本案是一个超小户型的公寓设计,室内面积只有24平米,好
图片尺寸640x424
小空间24平黑色系loft单身公寓
图片尺寸1200x1887
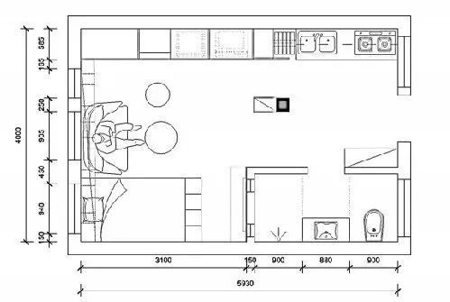
正方形loft 24平公寓第一版设计图
图片尺寸608x648
买不起大房子24平loft小公寓也很温馨
图片尺寸1080x1439
24平公寓小户型装修这样装越住越大
图片尺寸828x1104
正方形loft 24平公寓第一版设计图
图片尺寸994x800
24平超小户型装修效果图24平loft小户型公寓装修实景图
图片尺寸550x400
小户型24平北欧小公寓心栖息的地方设计高清案例合集
图片尺寸1000x983
24平loft单身公寓大立柱是户型缺陷但难不倒设计师
图片尺寸640x452
24平方暖色调简约风格单身公寓设计图片赏析
图片尺寸1000x1498
万科中心商务公寓24平米c户型
图片尺寸600x554
小户型24平黑色系loft单身女生公寓
图片尺寸1080x835
深圳坪山坪山深城投中心公馆(商住楼)单身公寓1室1厅24平近坪山比亚迪
图片尺寸600x450
24平的小户型公寓,把东西藏起来,显得更加宽敞
图片尺寸499x335
户型图大全,装修户型图,户型图分析,户型图设计方案
图片尺寸800x800
24平单身小公寓,功能齐全还有休闲阳台,小房子也要优雅的生活
图片尺寸544x544
万科甲壳虫公寓24平户型图
图片尺寸800x664
24平loft公寓~二楼全貌来啦
图片尺寸1080x1439
深圳24平米装修效果图 深圳1室0厅1卫装修案例 博客公寓1室0厅1卫
图片尺寸711x492