25平米房子设计图

25平单间,独立厨房,独立阳台
图片尺寸1600x1200
25平方的小户型
图片尺寸1056x1056
姐弟俩住25平房子没有隐私可言设计师妙手回春巧变三室三厅
图片尺寸1023x972
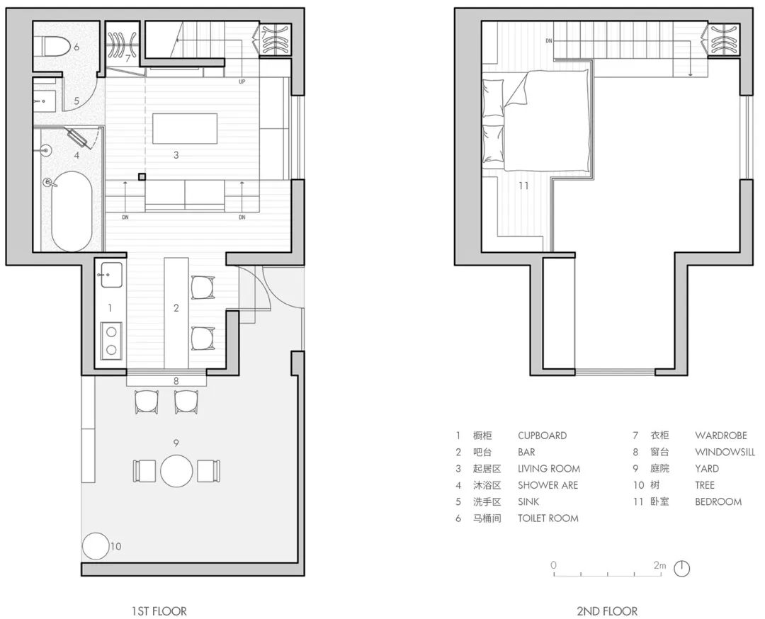
25平米小户型公寓装修户型图
图片尺寸900x595
武汉楼市:再评测一套比较优质的住宅小户型,这套房子位于武汉市汉阳人
图片尺寸1080x1320
福苑1室0厅1卫25平米装修案例
图片尺寸711x492
维斯曼全案设计湖南卫视嗨我的新家25平米超小户型改造
图片尺寸1080x722
建筑面积只有25平米的老房子虽然破小,却有3.
图片尺寸1280x654
25平loft公寓装修日记一设计师的方案
图片尺寸1080x1536
7825平loft平面设计图需要的姐妹自取
图片尺寸1080x1440
芜湖装修网25平米单身公寓 小空间里有大世界
图片尺寸825x503
联城美园1室0厅1卫25平米装修案例
图片尺寸711x492
祥泰公寓1室0厅1卫25平米装修案例
图片尺寸711x492
sketch up 草图大师 25平米 小户型 单身狗之家设计建模推敲
图片尺寸1920x1080
25平米小户型一居室旧房改造装修 添加一面墙收纳力爆棚!
图片尺寸500x335
上海的老房子多因为时间的迁移而变得老旧又狭小,但是通过设计师的
图片尺寸1080x874
整套房子一眼就能看尽.
图片尺寸640x872
25平方2孩之家有经验的小户型设计师看过来
图片尺寸1024x576
面积25平米公寓房在一线城市热销网友这么小也有人抢着买
图片尺寸640x472
晒晒农村自建房,两层小洋楼带装修25万,户型方正大气超漂亮!
图片尺寸2048x2038