4s店平面设计图手绘

分工完成的一次专业课作业设计,主要是对4s店的环境分析以及平面布置
图片尺寸1280x905
汽车美容店
图片尺寸1280x904
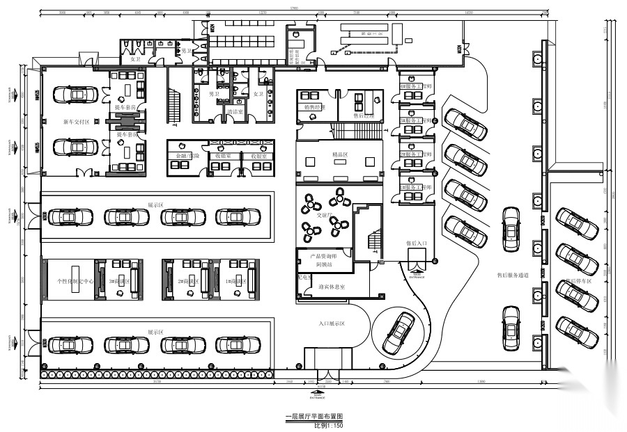
4s店一层平面图纸
图片尺寸820x499
上海宝山汽修店|空间|其他空间|上海趣雅空间设计 - 原创作品 - 站酷
图片尺寸1600x1280
图一本工程为某4s店面销售服务装修cad施工图,包含2#楼梯顶层平面图
图片尺寸610x401
众泰汽车4s店施工图
图片尺寸3395x2369
珠海蓝迪助力比亚迪 承接广州全新汽车4s店装修_优居视界
图片尺寸487x421
汽车形象店平面布置图图片
图片尺寸730x966
汽车4s店室内装修设计展厅展馆设计汽车专卖店平面建筑cad施工图
图片尺寸750x750
原创汽车4s店平面布置图施工图下载【id:755398769】
图片尺寸2339x3307
黑色大叔原创设计汽车美容店的第一次碰撞
图片尺寸980x766
汽车4s店装修
图片尺寸700x524
宝马4s店_2686644 – 设计本装修效果图
图片尺寸1100x770
> 4s店布局
图片尺寸594x577![[四川]川物林肯汽车4s店效果图 cad施工图 木饰面相关施工图下载【id](https://i.ecywang.com/upload/1/img0.baidu.com/it/u=3559626403,722874199&fm=253&fmt=auto&app=138&f=JPEG?w=725&h=500)
[四川]川物林肯汽车4s店效果图 cad施工图 木饰面相关施工图下载【id
图片尺寸900x621
手绘奥迪汽车展厅(清晰大图)欢迎交流
图片尺寸3509x2550
西安东郊吉利汽车4s店装修实景图赏析-土巴兔家居室内装修设计效雇技
图片尺寸670x473
平面图装修设计平面图装修设计店铺装修设计奥迪4s店装修设计奥迪4s店
图片尺寸720x509
蒙自易喜联盟洗车店装修设计案例_719㎡现代简约装修效果图-齐装网
图片尺寸4557x3253
韩国首尔捷恩斯汽车4s旗舰店江南店/-欧莱凯设计网
图片尺寸1415x1000