4x15米宅基地图纸

5米宽的宅基地 建中式小别墅 这个布局好不好
图片尺寸630x1126
设计图纸新农村平屋顶自建房图纸农村宅基地太小咋办4到7米宽也能建豪
图片尺寸1080x1581
面宽5米,进深11米的宅基地如何设计?
图片尺寸640x922
农村宽4米长13米的宅基地,该怎样设计?
图片尺寸1280x4669
宅基地面宽小?这10套户型面宽8m随便挑一套回村建!_盖房知识_图纸之家
图片尺寸609x654
15×15米宅基地要小院,怎么设计比较好?_盖房知识_图纸之家
图片尺寸640x646
农村还没建房宅基地小的看这里,精致小洋楼20几万拿下!
图片尺寸640x1051
15×15米宅基地要小院,怎么设计比较好?_盖房知识_图纸之家
图片尺寸640x717
4x15.5米农村三层别墅设计图,好看又实用_盖房知识_图纸之家
图片尺寸640x657
面宽5米,进深11米的宅基地如何设计?
图片尺寸640x964
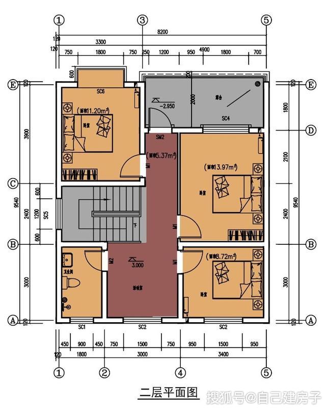
农村宅基地长20米,宽11米,准备建两层,该怎么样设计好?
图片尺寸640x427
农村自建房设计711m宅基地怎样设计更合理
图片尺寸640x980
适合农村宅基地建设的别墅图纸doc下载
图片尺寸800x1132
宅基地临街,建房应该怎么设计?分享8套图纸总有一套适合你
图片尺寸638x1108
狭长地块共墙农村宅基地,打算建3层,看完图纸,才知可以这么建
图片尺寸640x1177
楼梯部分3×6米未拆除部分东西长15米,南北宽6米;尺寸:宅基地东西长18
图片尺寸960x779
宅基地临街,建房应该怎么设计?分享8套图纸总有一套适合你
图片尺寸483x1536
适合小宅基地的农村房屋设计图,小户型建出大效果_盖房知识_图纸之家
图片尺寸640x792
有一块宅基地宽14米长18米怎么设计比较好
图片尺寸1127x1592
原创今天的4套别墅占地都不大适合宅基地不大又贪婪的你
图片尺寸640x804