6米宽12米长建房图

6701512米自建房别墅 自建房|潮汕居住别墅(三层) 坐标 : 广东
图片尺寸960x1280
求宽6米长12米的房屋设计图谢谢了
图片尺寸309x562
求宽6米长12米的房屋设计图,谢谢了
图片尺寸315x449
6米宽12米长建房图
图片尺寸530x705
6米宽12米长建房图
图片尺寸552x750
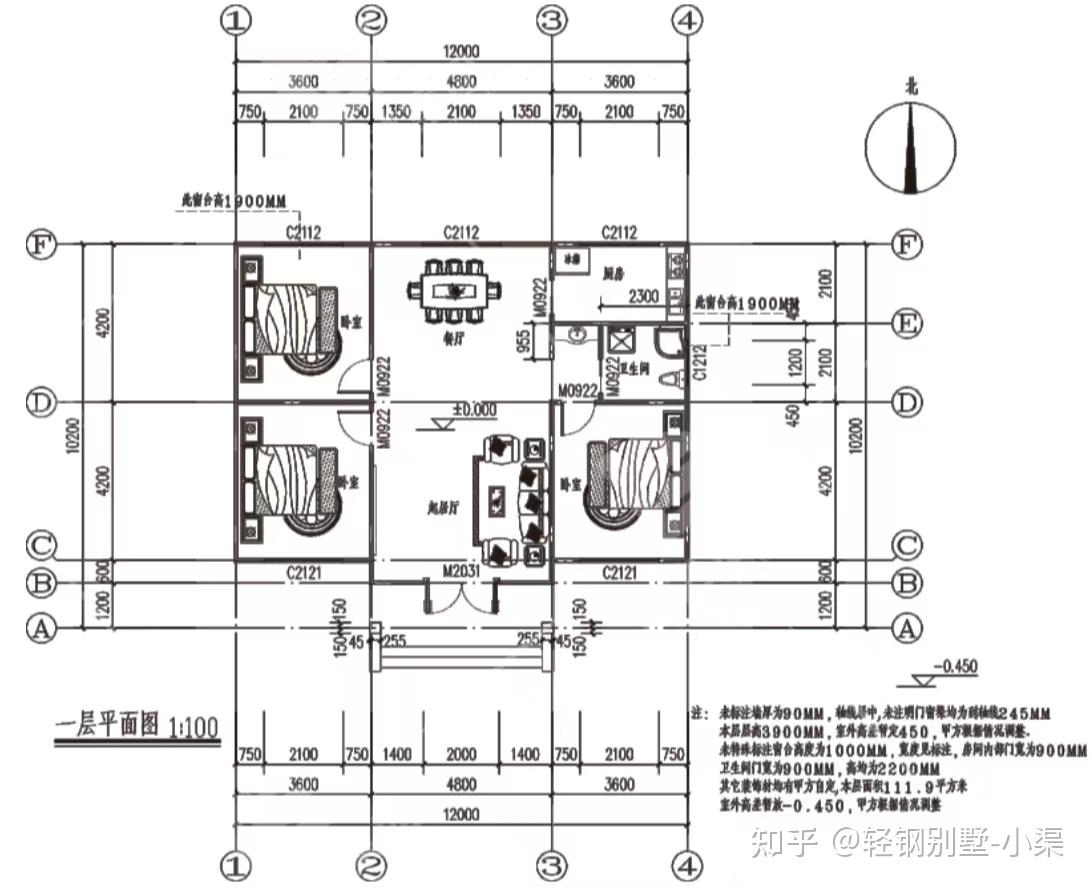
自建房南北长12米东西宽6米两室一厅一厨一卫该怎么设计合理呢
图片尺寸1092x888
6米宽,12米长,农村自建房,如何设计?
图片尺寸322x526
农村自建二层别墅,面宽12.6米,7室2厅,屋顶作大露台,太实用了
图片尺寸640x654
开间12米6款农村二层别墅新农村的经典户型经济舒适
图片尺寸731x586
宽6米多的两栋自建房第一栋漂亮带旋转楼梯第二栋配门面
图片尺寸950x2296
收费户型改造13之自建房6x12米 粉丝需求:左是边套带地下室,夫妻二人
图片尺寸959x1280
求6米x12米农村建房图纸
图片尺寸1152x774
6米宽小户型却拥有7卧3厅农村新房这样建实用
图片尺寸792x1500
二层自建房别墅,12.6米*12米精致户型,地形不规则也不怕
图片尺寸640x592
6米宽小户型却拥有7卧3厅农村新房这样建实用
图片尺寸1030x2000
面宽不足6米的地块三层别墅如何设计3个方案喜欢哪个
图片尺寸640x1024
宽6.9米长12米农村建房图纸朋友们给点意见
图片尺寸1600x1280
实拍12x12米农村自建房6室3厅可住三代人造价32万值吗
图片尺寸640x705
【农村自建房纪实】农村房宽6米第二层在建中求计算梁的设计
图片尺寸365x444
别墅设计-乡村房子设计图-农村自建房设计图-轩鼎
图片尺寸483x1536