7米宽长房屋设计图

面宽只有7米的实用农村自建房,很符合狭长的宅基地
图片尺寸1000x1720
农村自建房开间7米进深13米,该怎么设计?
图片尺寸800x1302
7米面宽怎么建农村别墅?看看这套户型,挑空客厅,健身房全都有
图片尺寸640x1299
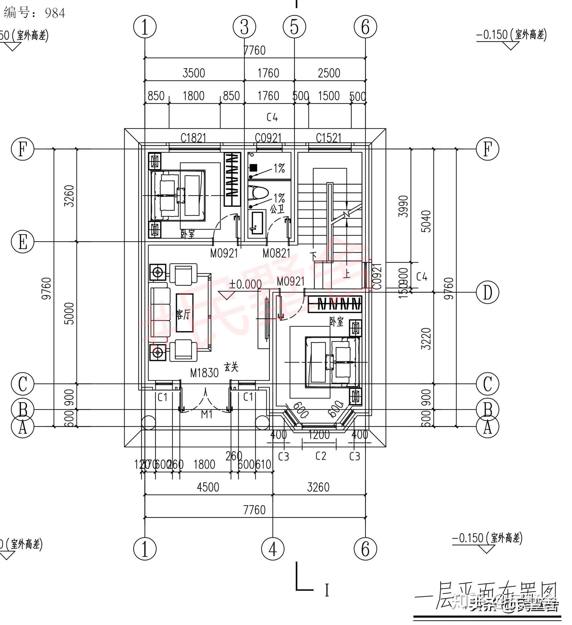
自建房图纸7x16(窄小面宽自建房户型) 宅基地范围:7米x16米 首层面积
图片尺寸961x1280
面宽7米自建房,这样设计怎么样?11室3厅适合农村家庭
图片尺寸640x1333
二层共设计三间卧室,尽可能地满足家人的居住需求.
图片尺寸650x1353
特价图纸丨7×16米小面宽别墅,这样设计真挺好_户型_信息_基本
图片尺寸846x1500
农村自建房开间7米进深13米,该怎么设计?
图片尺寸640x1033
自建房进深小怎么办,这10套7米进深农村别墅设计,猜你没见过
图片尺寸640x572
新中式二层7字户型,五卧设计与宽敞露台
图片尺寸640x927
小面宽阳光小墅,主体预算20万小面积别墅不宜设计过于繁复的外观造型
图片尺寸660x1165
2套农村别墅面宽仅7米户型方正实用又美观
图片尺寸640x876
7米大客厅 棋牌室 休闲阳台,11×13米二层别墅,农村住房的首选_设计的
图片尺寸1880x2530
7米面宽的3栋别墅,两款复式进深达到18米,第一款主体只要16万
图片尺寸640x1063
67米宽的宅基地建房施工队都说无从下手但难不倒设计师
图片尺寸640x911
5款开间7米多农村别墅,小户型玩出大花样,好看不贵,经典又实用
图片尺寸729x734
6-7米宽的宅基地建房,施工队都说无从下手,但难不倒设计师
图片尺寸1000x1533
7米面宽也能建中式这个户型太赞了阳光房配电梯超有面子
图片尺寸650x1181
二层设计:简单的三室,没有刻意的设计,6平方的门头刚好延伸出阳台的
图片尺寸1832x2000
新中式二层7字户型,五卧设计与宽敞露台
图片尺寸640x927