900座剧院平面图

歌剧院平面图一
图片尺寸1420x1893
剧院座位设计
图片尺寸1275x1000
市肥东县大剧院文化馆,取意"云门大卷"二层平面图立面图剖面图文化馆
图片尺寸1080x531
▼观众厅首层平面图▼观众厅二层平面图▼观众厅三层平面图▼观众厅四
图片尺寸3000x3186
▼观众厅三层平面图▼观众厅四层平面图▼观众厅剖面图▼观众厅剖面图
图片尺寸1000x1062
天津大剧院歌剧厅座位图,一共四层.
图片尺寸789x1052
哈尔滨大剧院场内座位图 哈尔滨大剧院场内座位图 - 哈尔滨本地宝
图片尺寸1024x1706
上海大剧院迎来25岁生日!当年,他们曾一起参与建造
图片尺寸640x800
新作 | 延安大剧院,陕西 / 中国建筑西北设计研究院有限公司
图片尺寸960x534
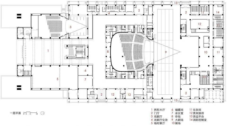
一层平面图项目概况项目名称|郑州大剧院建设地点|河南省郑州市郑
图片尺寸1008x744
剧院座位设计
图片尺寸1313x1000
(小杜鹃梦想剧场平面图↑)(小杜鹃梦想剧场舞台尺寸图↑)剧场参数剧场
图片尺寸548x500
滇之冠云南大剧院
图片尺寸1200x956
法国马戏团形式的剧院设计
图片尺寸1470x980
斯德哥尔摩歌剧院首层平面图
图片尺寸1420x1893
三层平面图立面图立面图剖面图项目信息项目名称:郑州大剧院项目地点
图片尺寸1080x763
临夏民族大剧院 / duts 杜兹设计,三层平面图 courtesy of duts
图片尺寸1323x935
剧场占地0.75公顷,建筑面积一万五千平方米.平面布局集中
图片尺寸3007x1753
de kampanje 剧院 / van dongen-koschuch,平面图
图片尺寸1025x1000
沈阳盛京大剧院——选座——爱乐之城
图片尺寸1280x2771