a3图框绘制步骤

图框格式(不留装订边)
图片尺寸1080x810
通用标准a3规格的纸张,其大小为420mm×297mm,是a4纸的2倍 图框尺寸
图片尺寸919x385
a3图框尺寸 线宽分别为0.25mm和0.5mm
图片尺寸1080x810
cad,a3图框怎么画,求全过程? - 知乎
图片尺寸827x1198
a3a4图框和标题栏
图片尺寸920x1302
a3a2加厚工程机械制图带图框动画建筑设计专用手绘有框图纸学生画纸a3
图片尺寸790x1377
图框手绘建筑设计机械工业画纸画图纸有框土木cad蓝图纸 (有框)a3绘图
图片尺寸790x807
图框国标 第1页 下一页 (共2页,当前第1页) 你可能喜欢 图纸标题栏 a3
图片尺寸622x374
图纸幅面是a3的图框尺寸是什么?
图片尺寸1438x570
a3标题栏填什么_cad图框标题栏尺寸-凯南网
图片尺寸1033x483
图纸上必须用粗实线画出图框,图样绘制在图框内部.
图片尺寸960x438
如何用cad绘制一个a3图纸图框线,并存成模板形式.要详细步骤?
图片尺寸898x501
图幅尺寸 图幅统一采用a3(420mm×297mm)幅面. 2.图框线 图框线
图片尺寸960x671
autocad2020怎么画a3图纸a3图框绘制步骤
图片尺寸473x683
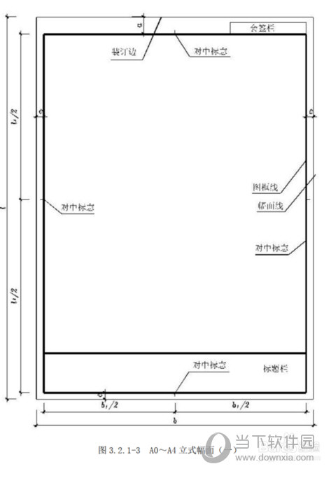
图纸幅面及图框尺寸
图片尺寸950x430![cad2014实例教程:[11]a3图框的绘制](https://i.ecywang.com/upload/1/img2.baidu.com/it/u=3802666796,1192732246&fm=253&fmt=auto&app=120&f=JPEG?w=593&h=357)
cad2014实例教程:[11]a3图框的绘制
图片尺寸593x357
图1-1 图框格式(电子挂图)
图片尺寸409x426
a0a1a2a3a4图纸尺寸大小图纸标准图框尺寸及折a1幅面多少
图片尺寸920x1302
工程绘图纸规格图纸幅面是a3的图框尺寸是什么
图片尺寸491x327
标准图框及其尺寸规定
图片尺寸893x596