cad户型图三室一厅

中海国际社区二手房,李沧区 三室一厅 93平米 总价:268万元-青岛新闻
图片尺寸600x450
90平三室一厅一卫,谁有办法在后期装修加一个餐厅
图片尺寸760x1075
105平三室一厅满墙大柜子终实现小户型大空间
图片尺寸1902x1476
二手房,黄岛区 三室一厅 93平米 总价:165万元-青岛新闻网房产
图片尺寸599x418
户型图风格:北欧户型:三室一厅面积:98㎡上海的一对年轻夫妇觉得自己
图片尺寸850x852
95㎡三室一厅收纳量暴增又美又酷还是高功能的家
图片尺寸640x527
今天分享的这套房子,我们一起从户型,装修上了解下,是否达到丈母娘的
图片尺寸640x640
三室两厅两卫趣味追求得到了调和私密与开放这对看似相悖的合理规划
图片尺寸522x785![[江苏]90㎡三室一厅一厨一卫住宅装修施工图](https://i.ecywang.com/upload/1/img1.baidu.com/it/u=3108726574,3703577546&fm=253&fmt=auto&app=138&f=JPEG?w=655&h=500)
[江苏]90㎡三室一厅一厨一卫住宅装修施工图
图片尺寸760x580![[分享]三室一厅两卫一厨图纸资料下载](https://i.ecywang.com/upload/1/img1.baidu.com/it/u=3749897666,1768587779&fm=253&fmt=auto&app=138&f=JPEG?w=578&h=500)
[分享]三室一厅两卫一厨图纸资料下载
图片尺寸1029x890
二层平面图:二楼是三室一厅一卫一书房布局,卫生间落水走农具间落管
图片尺寸640x638
200㎡优雅轻奢三室一厅演绎着温馨与浪漫
图片尺寸1080x809
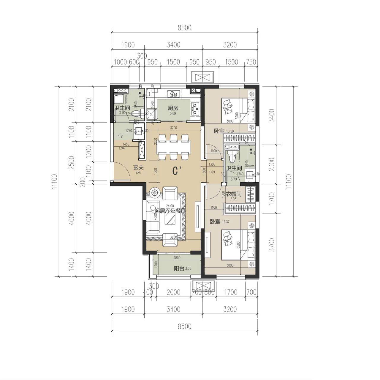
两室两厅两卫一厨一衣帽一阳台 (c户型首层北入户时即为c户型,共8
图片尺寸1280x1280
西仲花园二手房,市北区 三室一厅 78平米 总价:180万元-青岛新闻网
图片尺寸904x612
二层设有三室一厅,卧室设置充裕,居住无忧;客厅方便日常起居;客厅外的
图片尺寸2287x2452
功能布局:一层一房两卫一厨两厅,二层三房三卫两厅,三层三房两卫一厅.
图片尺寸1000x707
房型:三室一厅面积:147㎡
图片尺寸640x581
双星海华山景二手房,市北区 三室一厅 103平米 总价:270万元-青岛新闻
图片尺寸230x399
和平时光h户型三室一厅一卫116.85平米
图片尺寸750x650
二手房,李沧区 三室一厅 97平米 总价:210万元-青岛新闻网房产
图片尺寸600x450