cad排砖图

砌体亮点—排砖图展示砌体深化—过梁深化砌体深化—构造柱深化砌体
图片尺寸720x479
是为了更好地指导施工现场,减少材料浪费,杜绝砌体排砖错误导致返工
图片尺寸778x600
砌体工程bim排砖示例涨见识了
图片尺寸554x290
8号墙体排砖cad示意图
图片尺寸760x575
对应每一编号的墙体编制墙体排砖图
图片尺寸957x598
(四)集中加工1,砌筑工程大面积施工前必须设置集中加工区,所有的配砖
图片尺寸528x365
(1)在大面积砌筑施工之前编制各户型砌筑小样图和排砖图,砌筑小样图中
图片尺寸752x476
砌体工程bim排砖示例,学习一下
图片尺寸563x643
href="/item/墀头/6045764" data-lemmaid="6045764">墀头 /a>排砖
图片尺寸800x652
熟悉图纸设计要求和标准;并完成排砖图深化设计,并按设计要求和质量
图片尺寸549x275
排版小样对于新材料,新工艺或不同区域的抗震系数要求进行施工样板
图片尺寸640x441
分享cad立面排砖图资料下载
图片尺寸560x423
总工的经验真牛!十分钟让你学会墙,地砖排砖技巧
图片尺寸640x446
建筑砌体排版有什么要点需要满足什么要求碧桂园案例做得很棒
图片尺寸1405x903
加工清单2排版图示例砌筑前应绘制排砖组砌图,需将反坎,拉结筋,腰梁
图片尺寸940x857
3)在bim5d自动排砖功能中,一键导出cad排砖图,并手动修改顶砖区域.
图片尺寸535x318
3)在bim5d自动排砖功能中,一键导出cad排砖图,并手动修改顶砖区域.
图片尺寸536x406
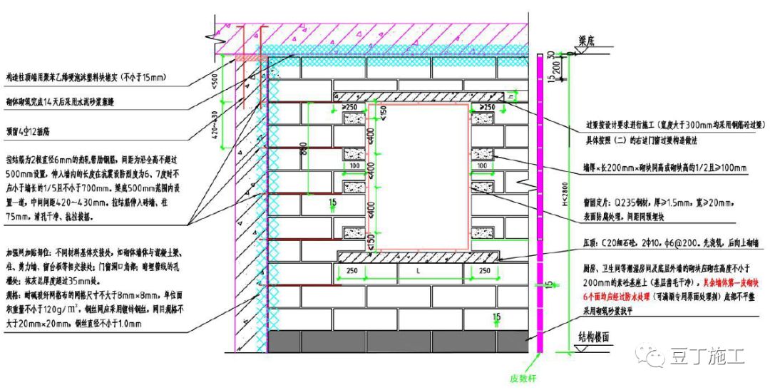
混凝土坎台施工→基层清理→定位放线→绘制排砖图→立皮数杆→砌块
图片尺寸1080x547
如果用传统cad方式排砖难度也是非常大,工程中排一面墙用45分钟左右
图片尺寸575x401![[分享]砌体工程技术交底(附中建3d动画演示)!](https://i.ecywang.com/upload/1/img0.baidu.com/it/u=3865322201,2577206486&fm=253&fmt=auto&app=138&f=JPEG?w=640&h=394)
[分享]砌体工程技术交底(附中建3d动画演示)!
图片尺寸640x394