cad设置a3图幅大小
![[分享]北京小汤山图纸资料下载](https://i.ecywang.com/upload/1/img2.baidu.com/it/u=3770614076,2631590497&fm=253&fmt=auto&app=138&f=JPEG?w=707&h=500)
[分享]北京小汤山图纸资料下载
图片尺寸1648x1165
櫔l呯
图片尺寸1280x1600
最全的图纸读图技巧,超实用!
图片尺寸640x488
a3尺寸图框怎么用cad设置
图片尺寸479x298
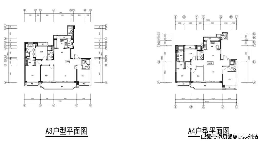
a3:四开间朝南约17.2m,且三间卧室朝南;双联阳台约9.
图片尺寸1080x581
3,纸质版图纸均为a3打印装裱,一式两份.
图片尺寸1080x762
cad教程用中望cad绘制二维机械设计的7个技巧
图片尺寸660x291
分享丨各种经典电气工程cad图纸
图片尺寸640x422
详解cad图形样板文件制作教程
图片尺寸580x243
cad技术条件原来可以这样快捷生成机械版有点强大
图片尺寸493x695
机械工业画纸画图纸有框土木cad蓝图纸 (有框)a3绘图纸【50张】【图片
图片尺寸790x581
想学石材cad看完这篇可能就会了
图片尺寸640x405
cad打印出来的图纸总是很模糊?原来只要这样设置,1秒变高清!
图片尺寸640x594
牛人整理的cad画图技巧大全必须收藏
图片尺寸540x446
智能化弱电系统cad图纸幅面及其内容表示
图片尺寸640x480
推荐2024年8款最佳碳纤维3d打印机
图片尺寸660x372
"寻找中国最佳设计师"华艺杯全国原创设计大奖赛报名启动!免费报名!
图片尺寸750x1250
深圳的湘情湘韵
图片尺寸660x994
autocad2016基础100讲第6讲图框如何设置
图片尺寸716x365
cad工程识图,制图在装配机加工工作领域应用广泛,结构工程师赵健以cad
图片尺寸4032x3024