cad飘窗

如何用gtj2018做一个完整的飘窗
图片尺寸760x337
4.2两种不同位置的飘窗节点
图片尺寸1080x549
分享飘窗施工节点图资料下载
图片尺寸560x250
空调机及飘窗设计
图片尺寸894x534
如下图: 飘窗: 将窗整个向外推出,形成飘窗,可以增大采光面积.
图片尺寸640x514
窗户框架结合阳台栏板,更适合做成榻榻米飘窗的样式.
图片尺寸970x516![[分享]cad阳台窗户资料下载](https://i.ecywang.com/upload/1/img0.baidu.com/it/u=3754999857,3324613214&fm=253&fmt=auto&app=138&f=JPEG?w=280&h=432)
[分享]cad阳台窗户资料下载
图片尺寸280x432![[分享]飘窗的设置资料下载](https://i.ecywang.com/upload/1/img1.baidu.com/it/u=2320823431,153768233&fm=253&fmt=auto&app=138&f=JPEG?w=491&h=500)
[分享]飘窗的设置资料下载
图片尺寸1080x1099
飘窗到底能不能打邻居为了好看把飘窗打了付出了承重的代价
图片尺寸497x284
精致家小资家庭小滋味飘窗阳台这么改造91㎡也可以变大空间
图片尺寸640x452
这是的飘窗会"讲故事",如何做到?
图片尺寸1080x1233
一般窗户以外墙窗台面为计算基准线;异形窗户,凸窗,飘窗等,也应以居室
图片尺寸406x636
世茂城品:不止卖房子,更卖"光线"
图片尺寸530x372
外墙宜平.a.不宜采用飘窗,尽量避免出现三维预制构件.5.
图片尺寸767x450
废弃老宾馆改造后竟成虹口租金最高的办公楼
图片尺寸640x386
85㎡,且符合规范74 转角大飘窗家具化,与天花一体化- 次卧模块
图片尺寸962x679
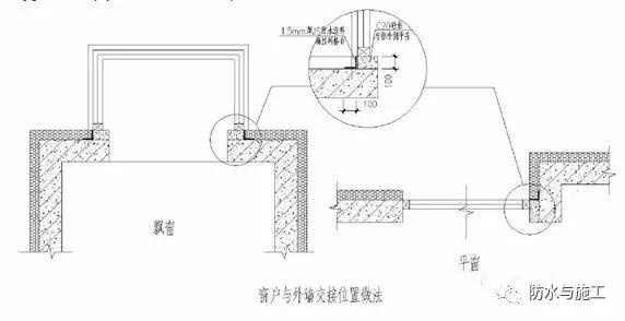
49个建筑防水工程标准化节点做法轻松解决渗漏
图片尺寸572x294
一家三口一猫一狗,150㎡复式房大改造,网友:家里有矿!
图片尺寸640x484
这是的飘窗会"讲故事",如何做到?
图片尺寸1080x1387
土建装饰同步穿插 整体工期缩短3个月
图片尺寸1040x601