grc构件规范图集

grc相关安装办法(网图,侵删!
图片尺寸720x537
grc安装构件大样图(7张)及安装技术措施
图片尺寸560x413
grc常见的安装方案
图片尺寸560x413
grc构件安装大样图
图片尺寸497x372
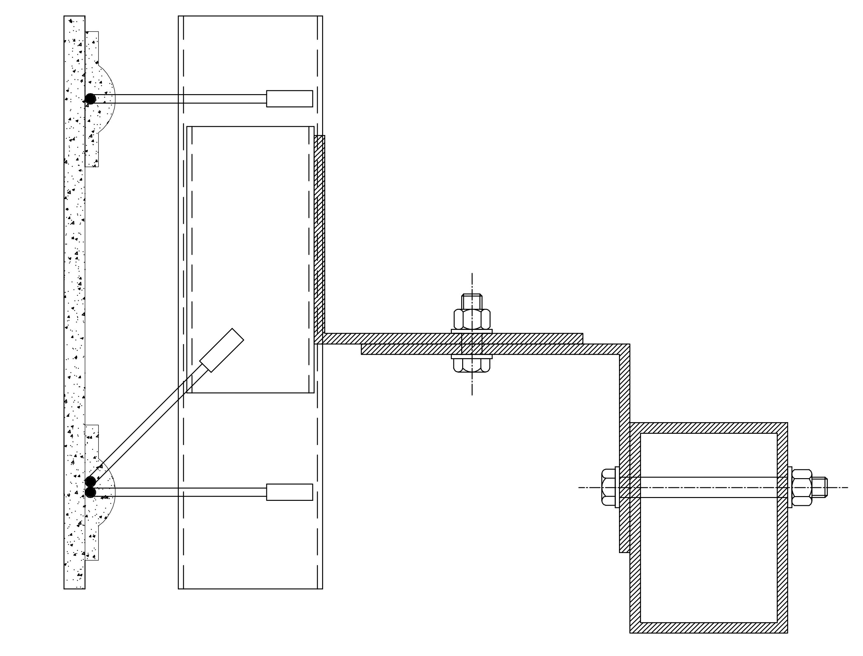
grc节点图
图片尺寸1200x848
欧式grc构件大样及做法柱老虎窗线脚栏杆
图片尺寸610x432
欧式grc构件大样及做法(柱,老虎窗,线脚,栏杆)图片2
图片尺寸610x432
【技术】grc成就建筑幕墙和屋面艺术之美
图片尺寸535x635![[资料]grc成就建筑幕墙和屋面艺术之美[广西平南grc&grg]](https://i.ecywang.com/upload/1/img1.baidu.com/it/u=1527361848,2990722727&fm=253&fmt=auto&app=138&f=JPEG?w=367&h=500)
[资料]grc成就建筑幕墙和屋面艺术之美[广西平南grc&grg]
图片尺寸560x763
grc幕墙与建筑主体转角连接构造示意
图片尺寸640x684
grc常见的安装方案
图片尺寸560x400![[分享]grc构件施工资料免费下载](https://i.ecywang.com/upload/1/img2.baidu.com/it/u=2455876824,28630035&fm=253&fmt=auto&app=138&f=JPEG?w=500&h=366)
[分享]grc构件施工资料免费下载
图片尺寸560x410
【技术】grc成就建筑幕墙和屋面艺术之美
图片尺寸603x792
grc窗套腰线节点详图.doc
图片尺寸1123x794
grc构件设计
图片尺寸2741x2084
grc外装饰构件安装技术
图片尺寸731x1019
grc斗拱,梁托,grc构件
图片尺寸1600x1280
grc构件,grc
图片尺寸557x464
grc装饰构件与墙体各部位的节点详图
图片尺寸610x432
grc预制构件设计及安装节点大样图
图片尺寸610x432