loft公寓设计平面图

36平米loft公寓自装 最终的平面图出来啦!
图片尺寸960x1280
平面图- 03 -治愈简约风loftheal the contracted style本案的屋主
图片尺寸1080x721
loft小公寓平面怎么布8种户型教会你
图片尺寸645x651
方案loft公寓民宿设计
图片尺寸4942x3462
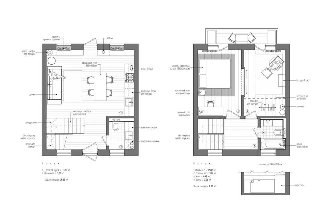
loft公寓设计力量与生活美学完美共生16413857184613194
图片尺寸1100x778
碧桂园蜜柚loft公寓
图片尺寸1600x1131
网红风格闺蜜房45平米loft
图片尺寸3508x2480
loft单身复式公寓方案交流,希望大家都来给点意见建议
图片尺寸2105x1488
东南五环墅质公寓45m精装loft30首付总价145w起坐拥亦庄通州
图片尺寸1080x802
loft公寓
图片尺寸3508x4962
网红风格闺蜜房45平米loft
图片尺寸3508x2480
蜜橙loft
图片尺寸590x394
25m2loft公寓平面方案探讨
图片尺寸1600x1280
求一个loft小户型的平面图.
图片尺寸1600x1280
loft公寓户型方案设计
图片尺寸3309x2339
一字型直筒型loft单身公寓平面图–5 套内3500*7950mm,高度5米
图片尺寸1280x1280
一层平面图 项目名称│路劲中和广场loft公寓样板间 甲方信息│垄劲
图片尺寸1060x1916
两套小型loft设计,勾勒生活蓝本的内在轮廓
图片尺寸1080x871
两套60㎡loft公寓样板房,生活品质不以大小博弈!
图片尺寸1080x559
全都通燃气,买一层用两层,这样的loft公寓户型,很难不动心
图片尺寸640x673